













































Penthouse de lux cu vedere panoramică în inima Zonei Arcului de Triumf.
Descoperiți eleganța și rafinamentul în acest penthouse de tip duplex situat pe Bulevardul Mareșal Averescu, oferind o priveliște impresionantă asupra orașului și a simbolurilor sale istorice. Amplasat la etajele 6 și 7 dintr-un imobil elegant cu 7 etaje construit în anul 2002, acest apartament este o oază de lux și confort într-unul dintre cele mai prestigioase cartiere din București.
Caracteristici principale:
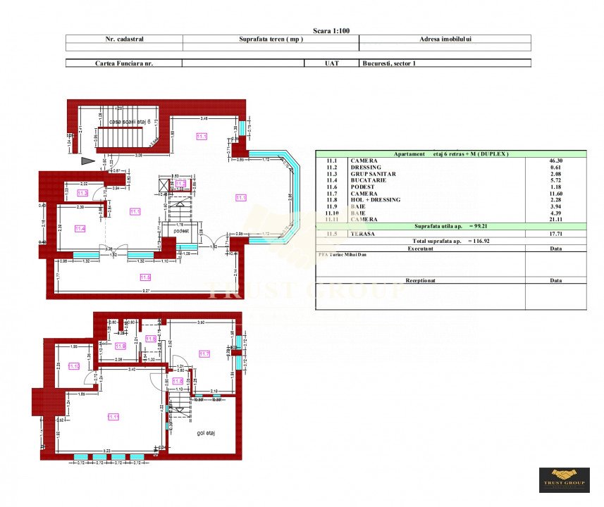
- Cu o suprafață utilă de 100 de metri pătrați, acest penthouse impresionează prin spațiile luminoase și aerisite, care au fost amenajate cu atenție pentru a oferi un cadru perfect pentru viața urbană modernă.
- Etajul 6 găzduiește un living spațios și primitor, ideal pentru petrecerea timpului liber alături de familie și prieteni. Ferestrele ample permit luminii naturale să pătrundă în interior, creând o atmosferă plăcută și relaxantă.
- Bucătăria deschisă este complet echipată și dispune de toate utilitățile necesare pentru a satisface orice cerințe culinare. Zona de dining este perfectă pentru a vă bucura de mese delicioase în compania celor dragi.
- Etajul 7 găzduiește două dormitoare elegante, fiecare cu baie proprie și cu un dressing generos. Aici veți găsi liniștea și confortul necesare pentru a vă relaxa și odihni în întimitate.
- Penthouse-ul dispune de o terasă generoasă de 18 metri pătrați, oferind o panoramă impresionantă asupra orașului. Aici puteți savura o ceașcă de cafea în timp ce admirați apusurile spectaculoase sau puteți organiza seri romantice sub cerul înstelat.
- Apartamentul este vândut împreună cu un garaj, oferindu-vă confort și siguranță pentru mașina dumneavoastră. (pretul acestuia nu este inclus in pret, el avand un cost aditional de 25.000€)
- Situata într-o zonă centrală și bine conectată, aceasta proprietate vă oferă acces facil la restaurante, magazine, parcuri și alte facilități importante.
Cu o istorie de închiriere de succes și un potențial de rentabilitate ridicat, acest apartament reprezintă o investiție ideală pentru cei care caută să obțină profit din proprietăți imobiliare. Cu un istoric de închiriere la un preț de peste 2500€, acest penthouse se remarcă ca o opțiune atrăgătoare pentru investitori.
Cu un design elegant și o locație privilegiată, acest penthouse reprezintă o oportunitate unică de a trăi sau investi în inima Bucureștiului. Nu ezitați să ne contactați pentru mai multe informații sau pentru a programa o vizionare, astfel inca sa puteti vedea singuri potentialul acestei proprietati.