






















Acest apartament amplasat într-o locație prestigioasă în zona Dorobanti-Capitale este o oază de lux și confort.
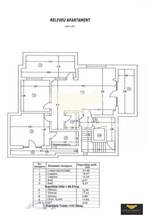
Cu trei camere generoase, două băi spațioase și nu mai puțin de trei terase totalizând 35mp, vă oferă o experiență de locuit desăvârșită.
De la ultimul etaj al unui imobil nou construit în 2019, veți fi răsfățați cu priveliști absolut spectaculoase, care îmbină armonios agitația urbană cu liniștea și frumusețea peisajului.
Finisajele de înaltă calitate conferă un aer sofisticat și rafinat, iar apartamentul este luminos și primitor în fiecare încăpere.
Separat se pot achiziționa un loc de parcare dedicat și 2 boxe pentru depozitare, facilități care adaugă practicitate și confort stilului de viață urban modern.
Această proprietate reprezintă cu adevărat un paradis urban, oferind o combinație perfectă între eleganță, confort și funcționalitate.
Pentru a va convinge de potențialul acestei proprietati, nu ezitați sa ne contactați pentru a stabili o vizionare.