


















Va propunem un apartament de trei camere in zona Ultracentral , in apropiere de mijloacele de transport in comun, parc si alte facilitati.
Apartamentul este situat la etajul 5 al unui imobil finalizat in anul 1930, izolat termic pe exterior si securizat cu interfon.
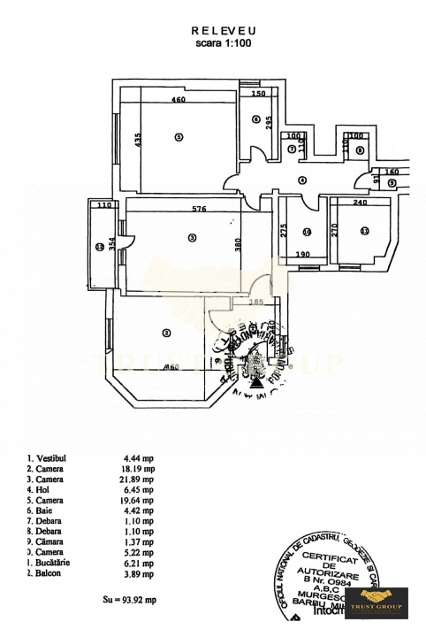
Dispune de o suprafata totala de 94mp, este semidecomandat si compartimentat astfel: living, bucatarie, doua dormitoare, doua bai, hol, spatiii de depozitare si un balcon.
Apartamentul se preteaza ca si locuinta de familie sau investitie si se vinde doar cu bucataria mobilata si utilata iar in rest liber, impreuna cu un loc de parcare in curtea imobilului.
*Proprietatea a fost verificata si este valabila, confirmarea fiind facuta, atat timp cat este la promovare.
*Pentru mai multe detalii si pentru programarea unei vizionari, sunati in orice zi intre orele 09:00 si 21:00 inclusiv in week-end incepand cu ora 10:00 pana la 22:00.