

























 Apartament 2 camere de închiriat – Rose Garden, Șoseaua Colentina 
Disponibil în complexul rezidențial Rose Garden, un ansamblu modern ce oferă:
	•	pază permanentă,
	•	spații comerciale,
	•	curte interioară cu spații verzi,
	•	loc de joacă pentru copii.
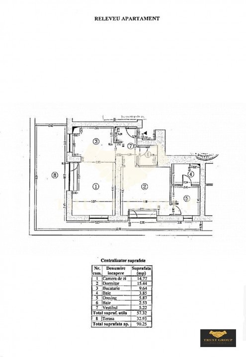
 Apartamentul este situat la etajul 11/11, luminos și bine compartimentat:
	•	living generos cu bucătărie open-space, mobilată și utilată complet (dotata cu plita pe gaz, cuptor electric, hota, frigider, masina de spalat vase),
	•	dormitor cu zonă de dressing și baie proprie cu cadă, ultilata cu masina de spalat rufe,
	•	baie de serviciu la intrare,
	•	terasă spectaculoasă de 33 mp, ideală pentru relaxare sau socializare.
 Beneficiază de loc de parcare subteran inclus.
Nu este permis fumatul in interiorul apartamentului. 
Nu sunt acceptate animalele de companie.
 Se închiriază pe termen lung.
Condiții: 1 lună avans + 2 luni garanție.
