










Va propunem un apartament de trei camere in zona Aviatie - Baneasa.
Apartamentul este situat la etajul 2 al unui imobil finalizat in anul 2025.
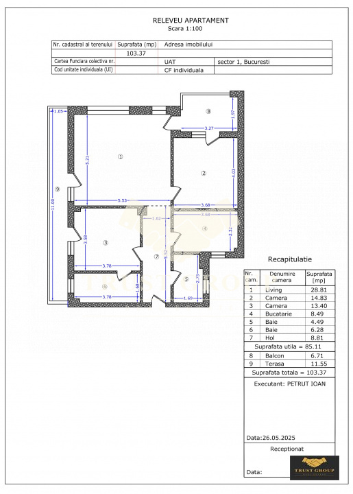
Dispune de o suprafata totala de 103mp, este semidecomandat si compartimentat astfel: living, bucatarie, doua dormitoare, doua bai, hol, spatii de depozitare, un balcon de 7mp si o terasa de 11mp.
Apartamentul se vinde cu finisaje de calitate superioara, geamuri termopan, parchet din lemn natural lipit, gresie și faianta moderne incalzire în pardoseala TECE, centrala termica Viesmann și o compartimentare eficienta.
Dispune de un loc de parcare si se achiziționează separat.
-Clasa energetica : A
*Proprietatea a fost verificata si este valabila, confirmarea fiind facuta, atat timp cat este la promovare.
*Pentru mai multe detalii si pentru programarea unei vizionari, sunati in orice zi intre orele 09:00 si 21:00 inclusiv in week-end incepand cu ora 10:00 pana la 22:00.