















Va propunem un apartament de trei camere pe Șoseaua Fabrica de Glucoza in Complex Belvedere Residence.
Apartamentul este situat la etajul 9 al unui imobil finalizat in anul 2018, izolat termic pe exterior si securizat cu interfon.
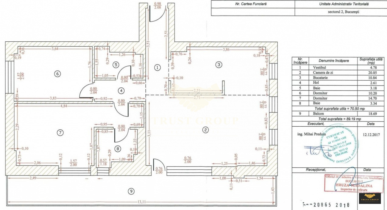
Dispune de o suprafata totala de 89mp, este semidecomandat si compartimentat astfel: living, bucatarie, doua dormitoare, doua bai, hol, spatii de depozitare si o terasa de 18mp..
Apartamentul se preteaza ca si locuinta de familie sau investitie si se vinde mobilat si utilat.
Separat se poate achiziționa un loc de parcare subteran la prețul de 20.000 euro.
*Proprietatea a fost verificata si este valabila, confirmarea fiind facuta, atat timp cat este la promovare.
*Pentru mai multe detalii si pentru programarea unei vizionari, sunati in orice zi intre orele 09:00 si 21:00 inclusiv in week-end incepand cu ora 10:00 pana la 22:00.