


















Apartament 3 camere cu terasă spectaculoasă | Băneasa – Nordul Bucureștiului
Vă prezentăm un apartament de excepție situat în una dintre cele mai dorite zone din nordul Bucureștiului – Băneasa, într-un imobil nou (2024), cu regim de înălțime S+P+4, ce oferă un standard ridicat de confort, design și funcționalitate.
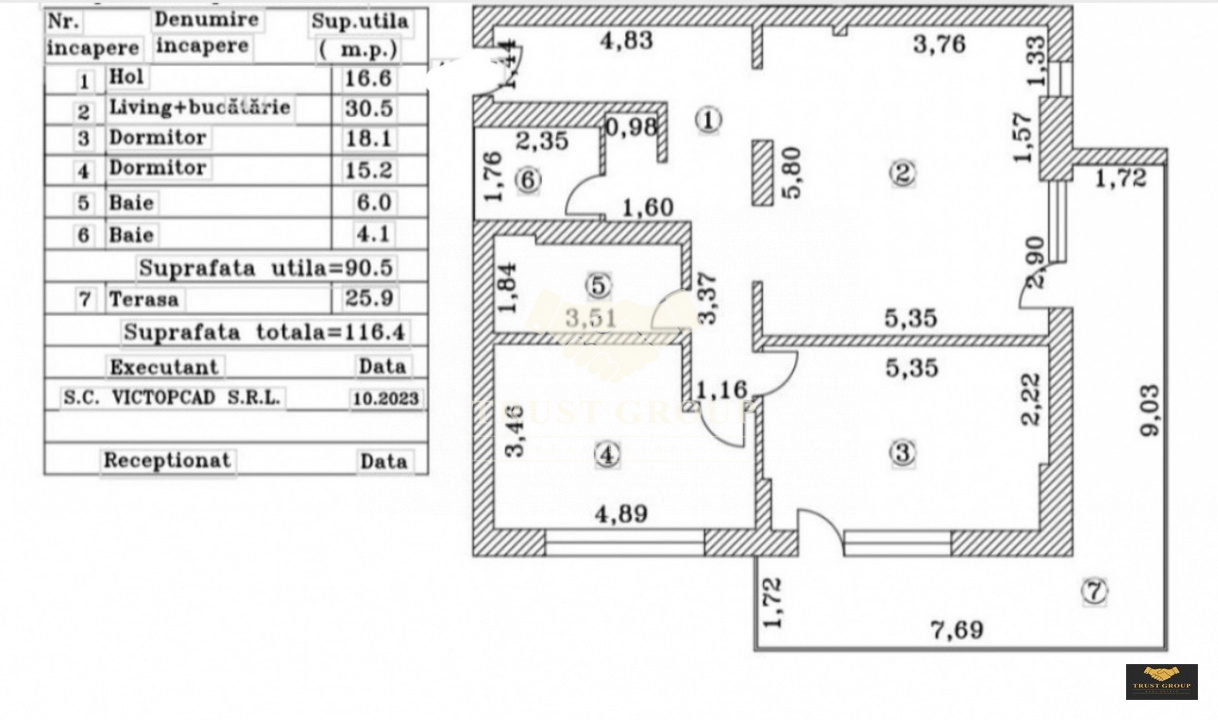
Proprietatea se află la etajul 3 și beneficiază de o compartimentare decomandată, cu spații ample, lumină naturală din plin și o terasă generoasă care extinde perfect zona de living.
⸻
Date tehnice
• Suprafață utilă: 90,50 mp
• Suprafață terasă: 25,90 mp
• Suprafață utilă totală: 116,40 mp
• Compartimentare: Decomandat
• Camere: 3
• Dormitoare: 2
• Băi: 2
• Bucătărie: 1
• Etaj: 3
• Loc de parcare: 1 (subteran)
• An construcție: 2024
⸻
Compartimentare & design
Apartamentul este gândit pentru un stil de viață modern și confortabil și include:
• Living spațios cu acces direct către terasa de 26 mp
• Bucătărie complet mobilată și utilată
• Două dormitoare, dintre care unul poate fi amenajat ca birou sau cameră de oaspeți
• Dressing generos
• Două băi elegante, una matrimonială și una de serviciu
• Holuri largi și spații de depozitare eficient integrate
Finisajele sunt ultra-premium, cu parchet, gresie, faianță de calitate superioară, uși interioare din lemn, ferestre termoizolante și ușă metalică.
⸻
Confort & dotări
• Centrală termică proprie
• Aer condiționat
• Contorizare separată
• Lift și interfon
• Imobil izolat termic
• Se vinde complet mobilat și utilat
⸻
Localizare & lifestyle
Unul dintre cele mai mari avantaje ale proprietății este poziționarea excelentă, care permite acces rapid către zonele-cheie din nordul capitalei:
• Băneasa Shopping City – 7 minute
• Promenada Mall – 15 minute
• Parcul Herăstrău – 10 minute
• Aeroportul Henri Coandă – 15 minute
• Școli internaționale și private – 5–10 minute
• Zone de business (Pipera, Aviației, Barbu Văcărescu) – 10–15 minute
• Restaurante, cafenele, săli de fitness și supermarketuri – la câteva minute
În imediata apropiere se află lacuri, spații verzi și parcuri, oferind un cadru ideal pentru relaxare, sport și plimbări.