









Vă propunem spre achiziție un apartament modern de 3 camere, situat într-una dintre cele mai căutate zone din nordul Capitalei – Aviației – Băneasa, o locație apreciată pentru echilibrul perfect între viața urbană activă și proximitatea față de spații verzi, centre de business și zone comerciale de top.
Apartamentul este amplasat la etajul 2 al unui imobil tip bloc, cu regim de înălțime P+3, construcție finalizată în anul 2025, realizată la standarde moderne de confort, siguranță și eficiență energetică. Imobilul este dotat cu lift, videointerfon și beneficiază de izolație termică exterioară, asigurând un consum optim de energie.
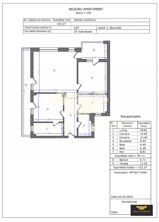
Locuința are o suprafață utilă de 85 mp, la care se adaugă un balcon de 7 mp și o terasă generoasă de 11 mp, rezultând o suprafață utilă totală de 103 mp. Compartimentarea este eficientă, oferind un confort sporit și o delimitare clară între zona de zi și cea de noapte. Apartamentul este compus din:
• living luminos, cu acces către terasa exterioară
• bucătărie separată
• două dormitoare
• două băi (baie principală + wc de serviciu)
• hol cu spații de depozitare și dressing
• balcon și terasă ideale pentru relaxare
Proprietatea se predă finisată complet, cu materiale de calitate superioară: parchet din lemn natural lipit, gresie și faianță moderne, ferestre PVC cu geam termopan, uși interioare din lemn și ușă de intrare metalică. Confortul termic este asigurat de încălzirea în pardoseală TECE, alimentată de centrală termică proprie Viessmann, iar climatizarea este completată de aer condiționat. Apartamentul se încadrează în clasa energetică A, oferind eficiență și costuri reduse de întreținere.
Apartamentul este nemobilat și neutilat, oferind viitorilor proprietari libertatea de a-l amenaja și personaliza după propriul gust. De asemenea, dispune de un loc de parcare, care se achiziționează separat.
Localizare & puncte de interes:
Zona beneficiază de acces rapid către multiple puncte cheie ale orașului:
• Metrou Aurel Vlaicu – aproximativ 8–10 minute de mers pe jos
• Parcul Herăstrău – la circa 10 minute
• Promenada Mall – aproximativ 5–7 minute cu mașina
• Băneasa Shopping City – la 10–12 minute cu mașina
• acces facil către zonele de business din Pipera, Aviației și DN1
Proprietatea a fost verificată, este valabilă și disponibilă pe toată perioada promovării.
* La pretul afisat se adauga TVA
📞 Pentru mai multe informații sau pentru programarea unei vizionări, ne puteți contacta zilnic între orele 09:00 – 21:00, inclusiv în weekend, între 10:00 – 22:00.