
Va propunem un apartament de trei camere în zona Aviației , în în Complex Nusco City
Apartamentul este situat la etajul 2 al unui imobil finalizat in anul 2026, izolat termic pe exterior si securizat cu interfon.
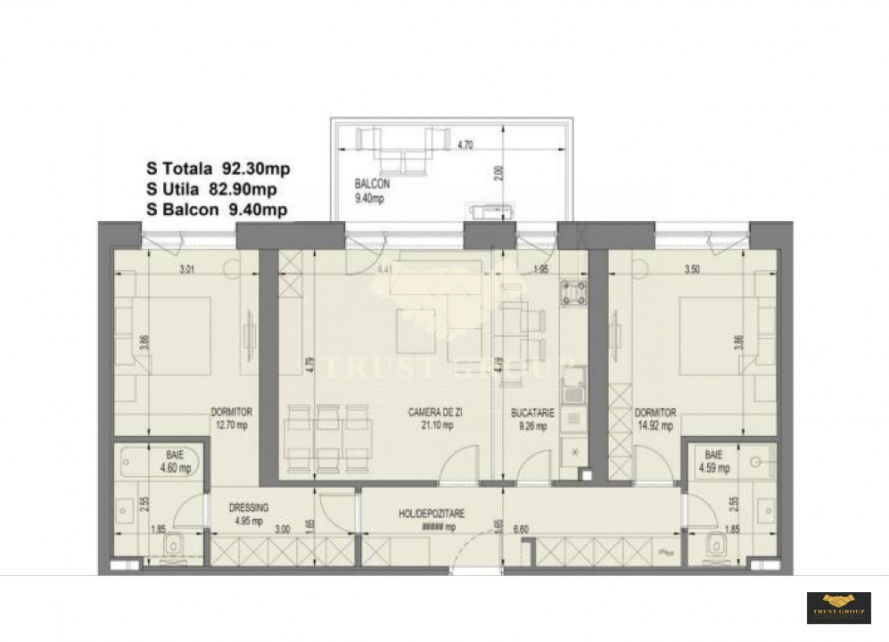
Dispune de o suprafata totala de 92mp, este decomandat si compartimentat astfel: living, bucatarie, doua dormitoare, doua bai, hol, spatii de depozitare si un balcon.
Apartamentul se preteaza ca si locuinta de familie sau investitie si se vinde nemobilat și neutilat.
Finisaje și dotări:
Centrală termică și Încălzire în pardoseală, aer condiționat, instalații electrice premium, parchet triplustratificat din stejar, plăci ceramice Cristacer, tâmplărie aluminiu.
Separat se poate achiziționa un loc de parcare subteran la prețul de 25.000euro.
*Proprietatea a fost verificata si este valabila, confirmarea fiind facuta, atat timp cat este la promovare.
*Pentru mai multe detalii si pentru programarea unei vizionari, sunati in orice zi intre orele 09:00 si 21:00 inclusiv in week-end incepand cu ora 10:00 pana la 22:00.