Trust Group Agentie imobiliara utilizează fişiere de tip cookie pentru a personaliza și îmbunătăți experiența ta pe Website-ul nostru. Înainte de a continua navigarea pe Website-ul nostru te rugăm să aloci timpul necesar pentru a citi și înțelege conținutul Politicii de Cookie. Prin continuarea navigării pe Website-ul nostru confirmi acceptarea utilizării fişierelor de tip cookie conform Politicii de Cookie.

Apartament 3 camere Aviatorilor | Imobil 2001

Bucuresti, Aviatorilor

434.999€
ID: P55471 2
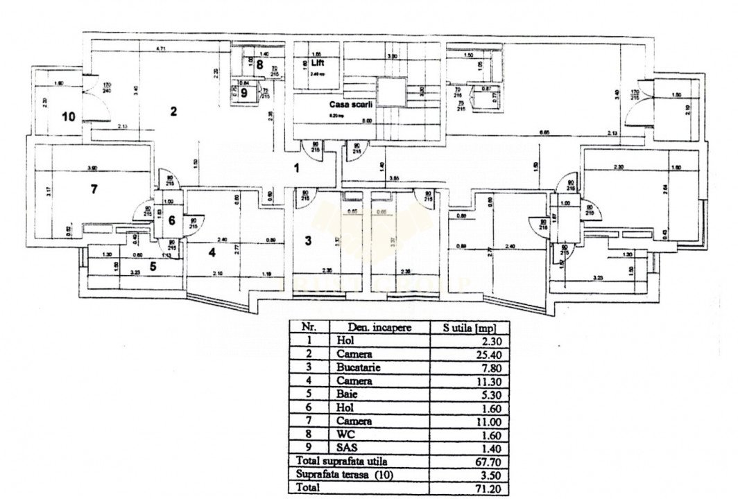
  • Nr. camere:3
  • S. utila:71.00 mp
  • S. balcoane:3.50 mp
  • S. utila totala:74.50 mp
  • S. construita:74.50 mp
  • Comp.:Decomandat
  • Confort:1
  • Etaj:Etaj 3
  • Nr. bucatarii:1
  • Nr. bai:2
  • Nr. balcoane:1
  • An constructie:2001
  • Tip imobil:Bloc
  • Regim inaltime:P+4
  • Clasa energetica:A

Va propunem un apartament de trei camere in zona Aviatorilor , in apropiere de parcul Herastrau.
Apartamentul este situat la etajul 3 al unui imobil finalizat in anul 2001, izolat termic pe exterior si securizat cu interfon.
Dispune de o suprafata totala de 74,50mp, este decomandat si compartimentat astfel: living, bucatarie, doua dormitoare, doua bai, hol, spatiii de depozitare si un balcon.
Apartamentul se preteaza ca si locuinta de familie sau investitie si se vinde mobilat si utilat.

*Proprietatea a fost verificata si este valabila, confirmarea fiind facuta, atat timp cat este la promovare.
*Pentru mai multe detalii si pentru programarea unei vizionari, sunati in orice zi intre orele 09:00 si 21:00 inclusiv in week-end incepand cu ora 10:00 pana la 22:00.

Utilitati
  • Utilitati generale: Curent, Apa, Canalizare, Gaz, CATV
  • Sistem incalzire: Centrala proprie, Calorifere
  • Climatizare: Aer conditionat
Finisaje
  • Izolatii: Bloc izolat termic
  • Pereti: Vopsea lavabila, Faianta
  • Podele: Parchet, Gresie
  • Stare: Finisat
  • Ferestre: PVC, Termopan
  • Usa intrare: Metal
  • Usa interior: Lemn
Dotari
  • Spatii utile: Wc serviciu
  • Bucatarie: Mobilata, Utilata
  • Contorizare: Apometre
  • Mobilat: Complet
  • Imobil: Interfon, Lift
Zona
  • Amenajare strazi: Asfaltate
  • Priveliste: Panoramica

Gabriel Maris

Founder- REALTOR®

Contacteaza-ma

Gabriel Maris

0765704377