








Situat la capătul Șoselei Nicolae Titulescu, la intersecția cu Banu Manta, acest apartament cu 3 camere reprezintă o oportunitate excelentă pentru cei care își doresc să își creeze casa mult dorită, într-o zonă centrală, bine conectată și apreciată.
Apartamentul este amplasat la etajul 1 al unui imobil solid, construit în 1978, cu regim de înălțime P+10, izolat termic la exterior și dotat cu lift și interfon. Un avantaj important îl reprezintă accesul securizat în curtea imobilului, realizat prin telecomandă, ceea ce face ca blocul să fie foarte sigur, un aspect rar și extrem de apreciat în zonă.
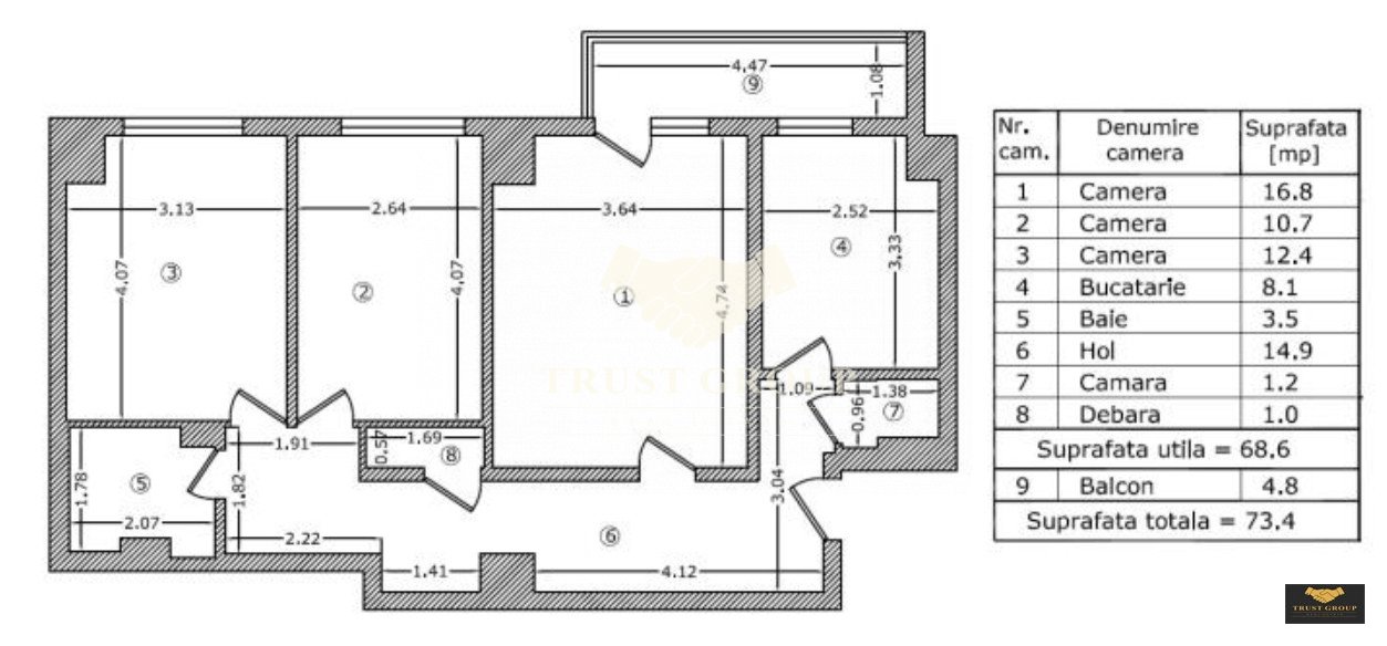
Cu o suprafață utilă de 71 mp (76 mp construiți), apartamentul este decomandat și eficient compartimentat: living luminos, bucătărie separată, două dormitoare, baie, hol generos cu spații de depozitare și balcon.
Un element esențial de menționat este faptul că în anul 2024 au fost schimbate integral coloanele de instalații sanitare, un upgrade major care elimină una dintre cele mai costisitoare intervenții într-un apartament vechi și oferă un plus de siguranță viitorilor proprietari.
Apartamentul necesită renovare, ceea ce îl transformă într-o oportunitate reală de personalizare – ideal pentru cei care își doresc să amenajeze locuința exact după propriul gust, fără compromisuri, sau pentru investitori care caută un randament bun într-o zonă cu cerere constantă.
Localizare & acces:
• Intersecția Nicolae Titulescu – Banu Manta
• Acces rapid către mijloace de transport în comun
• Aproape de parc, școli, magazine, cafenele și facilități urbane
• Conectare facilă către zona centrală și de business a orașului
Utilitățile includ curent electric, apă, canalizare și gaz, iar încălzirea este realizată prin termoficare, cu calorifere. Ferestrele sunt din PVC cu geam termopan, iar apartamentul este contorizat individual (apometre).
O proprietate ideală pentru cei care caută poziție excelentă, siguranță și potențial, într-o zonă consacrată a Bucureștiului.