






Va propunem un apartament de trei camere in zona Banu Manta, in apropiere de mijloacele de transport in comun, parc si alte facilitati.
Apartamentul este situat la etajul 5 al unui imobil finalizat in anul 1981, izolat termic pe exterior si securizat cu interfon.
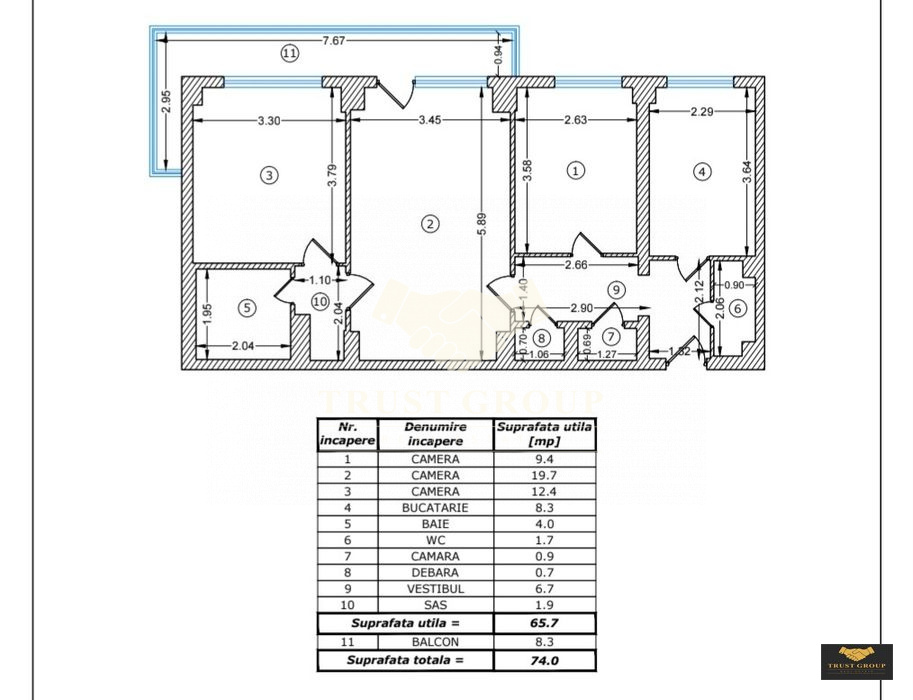
Dispune de o suprafata totala de 74mp, este semidecomandat si compartimentat astfel: living, bucatarie, doua dormitoare, doua bai, hol, spatii de depozitare si un balcon.
Apartamentul se preteaza ca si locuinta de familie sau investitie si necesita renovare.
*Proprietatea a fost verificata si este valabila, confirmarea fiind facuta, atat timp cat este la promovare.
*Pentru mai multe detalii si pentru programarea unei vizionari, sunati in orice zi intre orele 09:00 si 21:00 inclusiv in week-end incepand cu ora 10:00 pana la 22:00.