





















Apartament premium cu 3 camere, terasă generoasă și 2 locuri de parcare – Barbu Văcărescu | 102 The Address
Vă propunem spre vânzare un apartament deosebit, situat într-una dintre cele mai bine cotate zone ale Capitalei – Barbu Văcărescu, în cadrul ansamblului 102 The Address, un reper al locuirii moderne, cu acces rapid către centrele de business, zonele de relaxare și punctele cheie ale orașului.
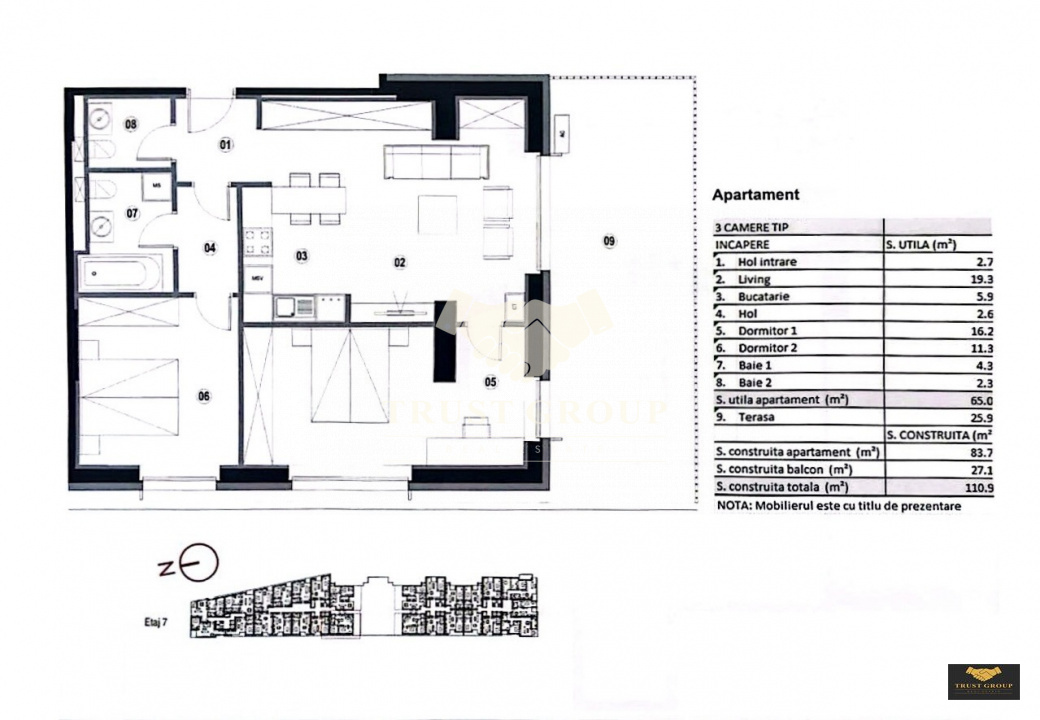
Apartamentul este amplasat la etajul 7 din 10, într-un imobil finalizat în 2021, construit la standarde înalte de calitate, izolat termic, dotat cu videointerfon și lift modern, oferind un nivel ridicat de confort, siguranță și eficiență energetică (Clasa A).
Compartimentare și suprafețe
Locuința dispune de o suprafață utilă de 70 mp, la care se adaugă o terasă spectaculoasă de 25 mp, rezultând o suprafață totală de 95 mp. Compartimentarea este eficientă și echilibrată, ideală atât pentru locuire personală, cât și pentru investiție:
• Living luminos, cu acces direct către terasă
• Bucătărie complet mobilată și utilată
• Două dormitoare confortabile
• Două băi (inclusiv grup sanitar de serviciu)
• Hol generos, spații de depozitare și dressing
Orientarea Sud–Vest asigură lumină naturală pe tot parcursul zilei și o atmosferă caldă și primitoare.
Finisaje și dotări
Apartamentul se vinde complet mobilat și utilat, beneficiind de:
• Încălzire în pardoseală prin centrală proprie
• Aer condiționat
• Parchet și gresie de calitate superioară
• Ferestre din aluminiu cu geam termopan
• Uși interioare din lemn, ușă metalică la intrare
În preț sunt incluse 2 locuri de parcare și 2 boxe, un avantaj important în această zonă.
Localizare și accesibilitate
Poziționarea excelentă oferă acces rapid către punctele de interes ale orașului:
• Metrou Stefan cel Mare sau Aurel Vlaicu – aproximativ 8–10 minute de mers pe jos
• Promenada Mall – aproximativ 10 minute de mers pe jos
• Restaurantele și cafenelele din Dorobanți – 5–7 minute cu mașina sau ~15 minute pietonal
• Parcul Floreasca – aproximativ 10 minute de mers pe jos
• Parcul Circului – aproximativ 15 minute de mers pe jos
Zona este excelent deservită de mijloace de transport în comun și oferă acces rapid către Pipera, Aviatorilor, Floreasca și centrul orașului.
Concluzie
Această proprietate reprezintă alegerea ideală pentru cei care își doresc un stil de viață urban, modern și confortabil, dar și o investiție sigură, într-o zonă cu cerere ridicată și potențial excelent de închiriere.
📞 Pentru mai multe detalii sau pentru programarea unei vizionări, vă stăm la dispoziție zilnic, inclusiv în weekend.