Trust Group Agentie imobiliara utilizează fişiere de tip cookie pentru a personaliza și îmbunătăți experiența ta pe Website-ul nostru. Înainte de a continua navigarea pe Website-ul nostru te rugăm să aloci timpul necesar pentru a citi și înțelege conținutul Politicii de Cookie. Prin continuarea navigării pe Website-ul nostru confirmi acceptarea utilizării fişierelor de tip cookie conform Politicii de Cookie.

Apartament 3 camere Cismigiu | imobil 2007 | inchiriat- ideal investitie

Bucuresti, Cismigiu

329.999€
ID: P55792 4
  • Nr. camere:3
  • S. utila:74.00 mp
  • S. balcoane:17.00 mp
  • S. utila totala:91.00 mp
  • S. construita:107.00 mp
  • Comp.:Decomandat
  • Confort:1
  • Etaj:Parter
  • Nr. bucatarii:1
  • Nr. bai:2
  • Nr. balcoane:1
  • An constructie:2007
  • Tip imobil:Bloc
  • Regim inaltime:P+4
  • Clasa energetica:A

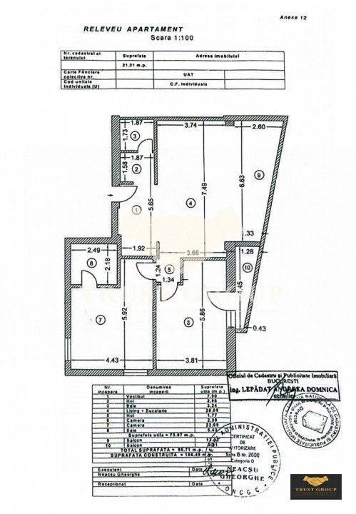
Va propunem un apartament de trei camere in zona Cismigiu, in apropiere de mijloacele de transport in comun, parc si alte facilitati.
Apartamentul este situat la Parterul unui imobil finalizat in anul 2007, izolat termic pe exterior si securizat cu interfon.
Dispune de o suprafata totala de 91mp, este decomandat si compartimentat astfel: living, bucatarie, doua dormitoare, doua bai, hol, spatiii de depozitare si doua balcoane.
Apartamentul se preteaza ca si locuinta de familie sau investitie si se vinde nemobilat si neutilat.
-Clasa energetica : A
*Proprietatea a fost verificata si este valabila, confirmarea fiind facuta, atat timp cat este la promovare.
*Pentru mai multe detalii si pentru programarea unei vizionari, sunati in orice zi intre orele 09:00 si 21:00 inclusiv in week-end incepand cu ora 10:00 pana la 22:00.

Utilitati
  • Utilitati generale: Curent, Apa, Canalizare, Gaz, CATV, Acces internet, Fibra optica, Utilitati in zona
  • Sistem incalzire: Centrala proprie, Calorifere
  • Climatizare: Aer conditionat
Finisaje
  • Izolatii: Bloc izolat termic
  • Pereti: Vopsea lavabila, Faianta
  • Podele: Parchet, Gresie
  • Stare: Finisat
  • Ferestre: PVC, Termopan
  • Usa intrare: Metal
  • Usa interior: Lemn
Dotari
  • Spatii utile: Wc serviciu, Dressing
  • Bucatarie: Nemobilata, Neutilata
  • Contorizare: Apometre, Contor gaz
  • Mobilat: Nemobilat
  • Imobil: Interfon, Lift
Zona
  • Amenajare strazi: Asfaltate, Iluminat stradal, Mijloace de transport in comun

Alexandra Munteanu

REALTOR®

Contacteaza-ma

0723478875