











Va propunem un apartament de trei camere in zona Cismigiu, in apropiere de mijloacele de transport in comun, parc si alte facilitati. 
Apartamentul este situat la Parterul unui imobil finalizat in anul 2007, izolat termic pe exterior si securizat cu interfon. 
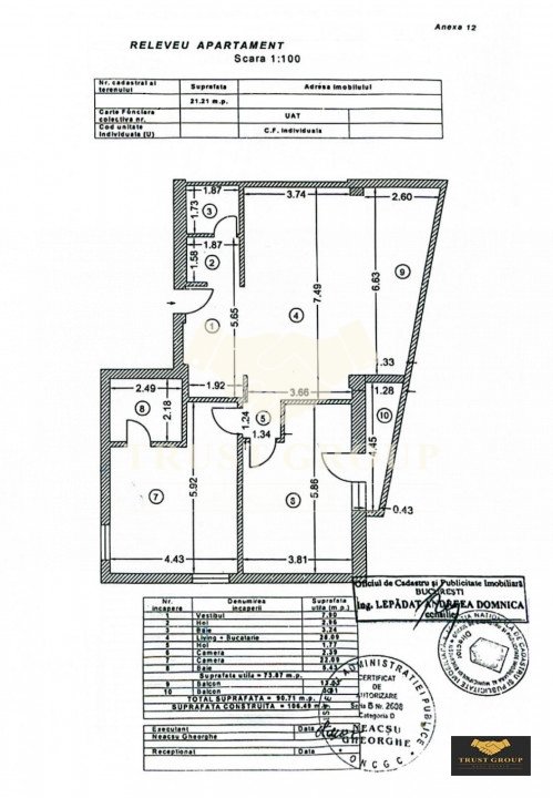
Dispune de o suprafata totala de 91mp, este decomandat si compartimentat astfel: living, bucatarie, doua dormitoare, doua bai, hol, spatiii de depozitare si doua balcoane.
Apartamentul se preteaza ca si locuinta de familie sau investitie si se vinde nemobilat si neutilat.
-Clasa energetica : A
*Proprietatea a fost verificata si este valabila, confirmarea fiind facuta, atat timp cat este la promovare. 
*Pentru mai multe detalii si pentru programarea unei vizionari, sunati in orice zi intre orele 09:00 si 21:00 inclusiv in week-end incepand cu ora 10:00 pana la 22:00.
