




























Lux și eleganță în inima Capitalei
Vă propunem spre achiziție un apartament spectaculos de trei camere, situat într-o zonă centrală, prestigioasă și extrem de accesibilă a Bucureștiului, aproape de restaurantele exclusiviste din Piața Victoriei și de Piața Romană. Locația asigură acces facil către orice punct important al orașului, inclusiv la metrou în doar 5 minute și la Spitalul Floreasca în maximum 10 minute, iar pentru momentele de relaxare și shopping, Promenada Mall se află la doar 18 minute distanță.
⸻
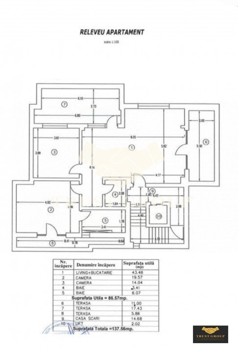
Compartimentare și suprafețe generoase
Situat la etajul 5 al unui imobil nou, construit în 2019, acest apartament impresionează prin spațiile sale bine gândite:
• Suprafață utilă: 86,57 mp
• Suprafață totală: 121 mp
• Terase generoase: 34,25 mp, perfecte pentru momente de relaxare, cină în aer liber sau pentru a savura priveliștea asupra orașului.
Apartamentul este decomandat, oferind confort maxim și intimitate:
• Living spațios, luminat natural, cu acces către terasă;
• Bucătărie complet mobilată și utilată, pregătită să devină centrul social al locuinței;
• Două dormitoare elegante, perfecte pentru odihnă și relaxare;
• Două băi spațioase și bine echipate;
• Holuri și spații de depozitare inteligente;
• Loc de parcare dedicat și două boxe suplimentare, disponibile la achiziție separată pentru 30.000 euro.
⸻
Finisaje și dotări premium
Apartamentul se remarcă prin finisaje ultrafinisate, atent alese pentru a crea un ambient sofisticat și elegant:
• Pereți cu vopsea lavabilă și faianță de înaltă calitate;
• Podele din parchet și gresie elegante;
• Ferestre din aluminiu cu geam termopan, asigurând izolare termică și fonică;
• Ușă de intrare metalică și uși interioare din lemn masiv;
• Încălzire prin pardoseală și aer condiționat cu ventiloconvectoare;
• Bloc dotat cu interfon, supraveghere video și lift pentru confort și siguranță sporită.
⸻
Experiența de viață
Acest apartament reprezintă o adevărată oază urbană, combinând eleganța, confortul și funcționalitatea într-un singur spațiu. Terasele generoase permit momente de relaxare cu priveliști spectaculoase asupra orașului, în timp ce compartimentarea inteligentă oferă intimitate pentru întreaga familie.
Fie că doriți o rezidență permanentă sau o investiție premium, această proprietate oferă toate avantajele unei vieți urbane moderne, în centrul Capitalei, cu acces rapid la centre de business, restaurante, cafenele și facilități medicale de top.
Pentru mai multe informații sau pentru a programa o vizionare, vă invităm să ne contactați.
Program telefonic 09:00-22:00