













Va propunem un apartament de trei camere in zona Aviatorilor , in apropiere de parcul Herastrau. 
Apartamentul este situat la etajul 3 al unui imobil finalizat in anul 2001, izolat termic pe exterior si securizat cu interfon. 
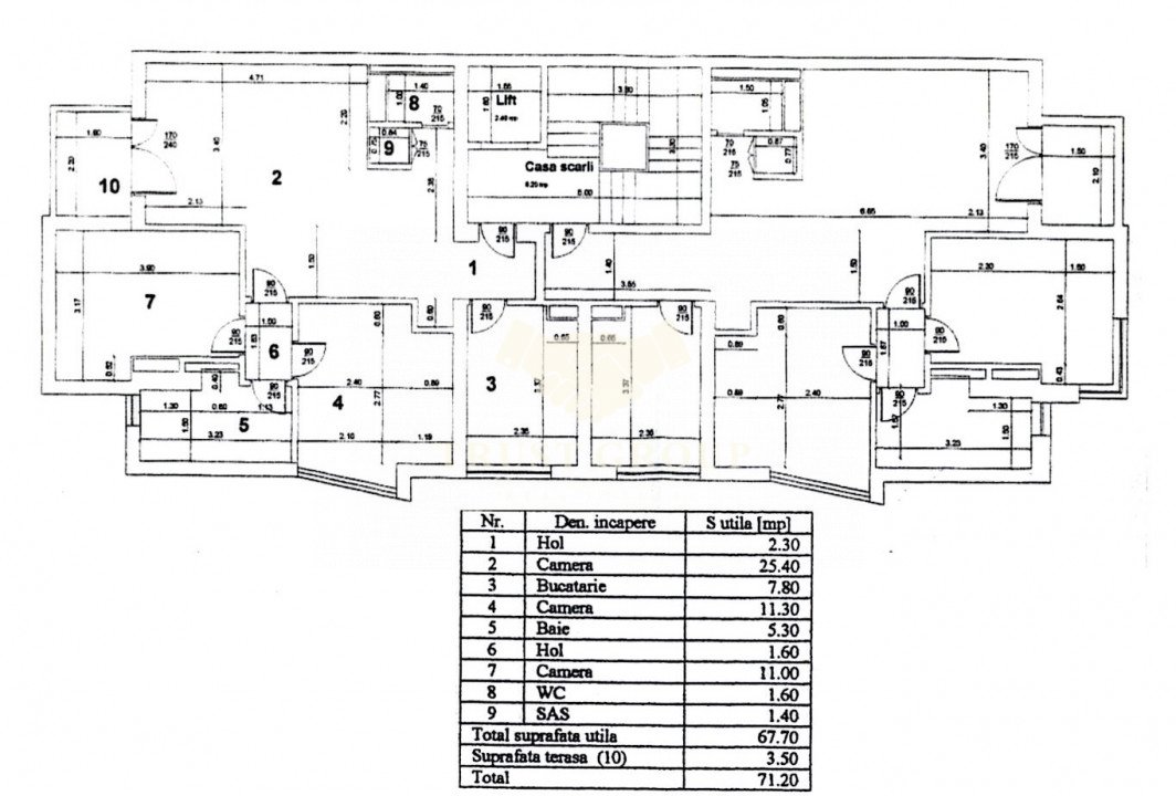
Dispune de o suprafata totala de 74,50mp, este decomandat si compartimentat astfel: living, bucatarie, doua dormitoare, doua bai, hol, spatiii de depozitare si un balcon.
Apartamentul se preteaza ca si locuinta de familie sau investitie si se vinde mobilat si utilat.
 
*Proprietatea a fost verificata si este valabila, confirmarea fiind facuta, atat timp cat este la promovare. 
*Pentru mai multe detalii si pentru programarea unei vizionari, sunati in orice zi intre orele 09:00 si 21:00 inclusiv in week-end incepand cu ora 10:00 pana la 22:00.
