






















Apartament 3 camere | Domenii | Terasă 13 mp | Bloc 2020
Vă propunem spre vânzare un apartament de 3 camere, situat în zona Domenii, într-un complex rezidențial modern, cu acces rapid către mijloace de transport, parcuri și facilități urbane esențiale.
Apartamentul este amplasat la etajul 1 din 11 al unui imobil finalizat în anul 2020, izolat termic pe exterior, securizat cu interfon, supraveghere video și lift.
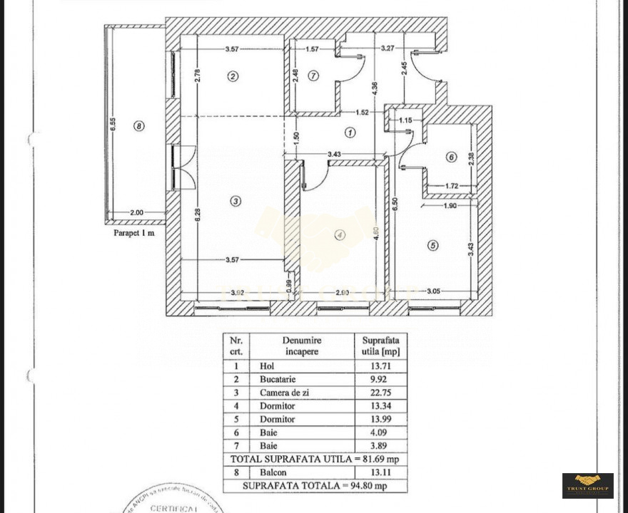
Locuința are o suprafață utilă totală de 95 mp (82 mp utili + terasă de 13 mp), este decomandată și compartimentată eficient:
• living spațios cu acces către terasă
• bucătărie separată, complet mobilată și utilată
• două dormitoare
• două băi (inclusiv WC de serviciu)
• hol cu spații de depozitare
• terasă ideală pentru relaxare
Apartamentul se vinde complet mobilat și utilat, fiind potrivit atât pentru locuire de familie, cât și pentru investiție.
Separat, se pot achiziționa două locuri de parcare.
⸻
Localizare & puncte de interes (timp de deplasare):
• Piața Domenii – aprox. 6–8 minute de mers pe jos
• Metrou 1 Mai – aprox. 8–10 minute de mers pe jos
• Parcul Herăstrău – Arcul de Triumf – aprox. 12–15 minute de mers pe jos
• Arcul de Triumf – aprox. 12 minute
• Piața Victoriei – aprox. 5 minute cu mașina
Zona oferă acces rapid către școli, grădinițe, supermarketuri, restaurante, cafenele și centre de business, fiind una dintre cele mai căutate zone rezidențiale din nordul Capitalei.
⸻
Caracteristici generale:
• Nr. camere: 3
• Suprafață utilă: 82 mp
• Suprafață terasă: 13 mp
• Suprafață utilă totală: 95 mp
• Suprafață construită: 110 mp
• Compartimentare: Decomandat
• Confort: 1
• Etaj: 1 / 11
• Nr. bucătării: 1
• Nr. băi: 2
• Nr. locuri parcare: 2 (se achiziționează separat)
• An construcție: 2020
• Tip imobil: Bloc
• Regim de înălțime: P+11
⸻
Utilități:
• Curent electric, apă, canalizare, gaz
• Acces internet
• Centrală termică proprie
• Încălzire prin pardoseală
• Aer condiționat
Finisaje:
• Bloc izolat termic
• Pereți: vopsea lavabilă, faianță
• Pardoseli: parchet, gresie
• Ferestre din aluminiu cu geam termopan
• Ușă intrare metal
• Uși interioare din lemn
• Stare: finisat
Dotări:
• WC de serviciu
• Bucătărie mobilată și utilată
• Contorizare separată
• Apartament complet mobilat
• Interfon, supraveghere video, lift
• Spații de agrement, curte comună și grădină
⸻
Proprietatea a fost verificată și este disponibilă pe toată durata promovării.
Pentru mai multe detalii sau pentru programarea unei vizionări, vă stăm la dispoziție zilnic între orele 09:00 – 21:00, inclusiv în weekend.