








Va propunem un apartament de trei camere in zona Titulescu-Banu Manta , in apropiere de mijloacele de transport in comun, parc si alte facilitati.
Apartamentul este situat la etajul 1 al unui imobil finalizat in anul 1978, izolat termic pe exterior si securizat cu interfon.
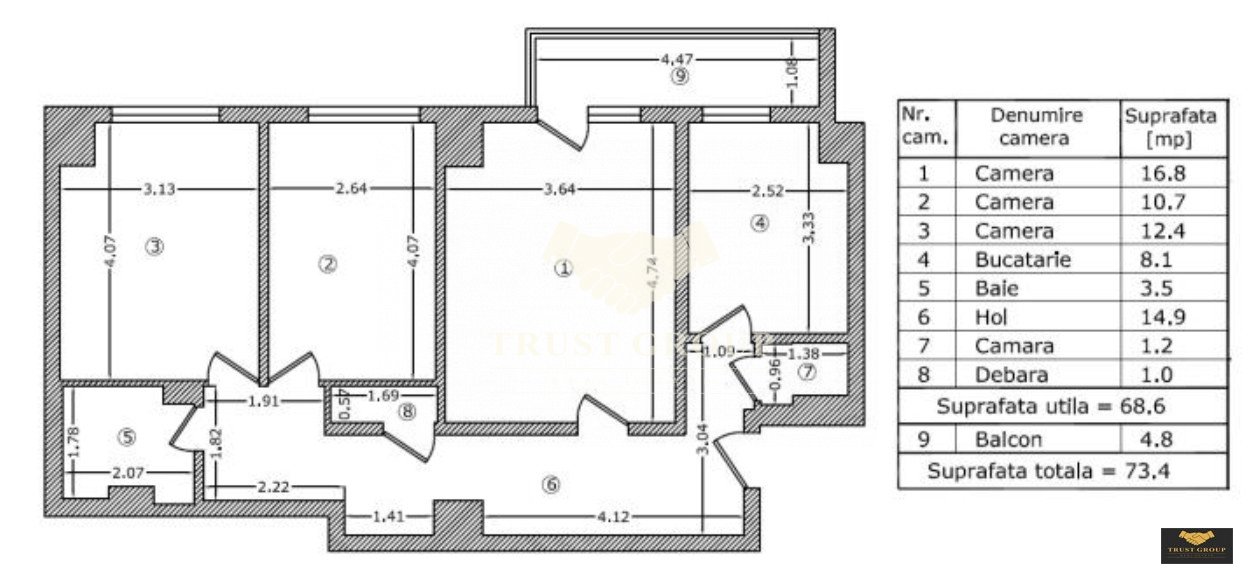
Dispune de o suprafata totala de 71,77mp, este decomandat si compartimentat astfel: living, bucatarie, doua dormitoare, baie, hol, spatii de depozitare si un balcon.
Apartamentul necesita renovare.
*Proprietatea a fost verificata si este valabila, confirmarea fiind facuta, atat timp cat este la promovare.
*Pentru mai multe detalii si pentru programarea unei vizionari, sunati in orice zi intre orele 09:00 si 21:00 inclusiv in week-end incepand cu ora 10:00 pana la 22:00.