













Va propunem un apartament de trei camere in zona Calea Plevnei, in apropiere de mijloacele de transport in comun, parc si alte facilitati.
Apartamentul este situat la parterul unei vile construite in anul 1936.
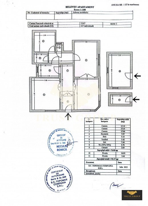
Dispune de o suprafata utila de 77mp, este semidecomandat si compartimentat astfel: living, bucatarie, doua dormitoare, doua bai, hol, spatii de depozitare.
Apartament versatil, ideal pentru sediu sau o familie tanara, cu potential bun de investitie, creditabil.
Vila eleganta in stil interbelic. Interior cald, tavane inalte, geamuri mari, boxa generoasa la subsol, acces exclusiv.
*Proprietatea a fost verificata si este valabila, confirmarea fiind facuta, atat timp cat este la promovare.
*Pentru mai multe detalii si pentru programarea unei vizionari, sunati in orice zi intre orele 09:00 si 21:00 inclusiv in week-end incepand cu ora 10:00 pana la 22:00.