











Acest apartament cu trei camere din cartierul Primăverii reprezintă expresia supremă a luxului urban. Situat într-un imobil boutique, construit în anul 2000, locuința îmbină designul modern cu un stil arhitectural elegant, oferind un spațiu rafinat, perfect adaptat nevoilor unei familii sau ale unei persoane care apreciază exclusivitatea și confortul absolut.
Compartimentare inteligentă și optimizare a spațiului
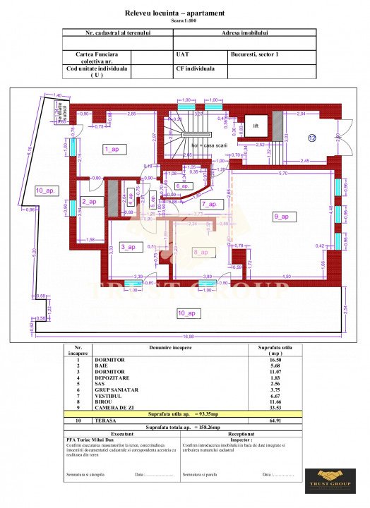
Suprafața utila totală de 94mp este optim distribuită pentru a oferi funcționalitate maximă și un stil de viață confortabil:
• Living & dining – Un spațiu generos și luminos, cu ferestre de mari dimensiuni și acces la terasa principală. Mobilier de designer, canapele premium și un sistem de iluminat inteligent creează o atmosferă caldă și elegantă.
• Bucătărie separată – Complet mobilată și utilată cu electrocasnice high-end, blat din cuarț și spații ample de depozitare. Design modern, culori neutre și finisaje premium.
• Doua dormitoare spațioase – Dormitorul matrimonial include o baie privată cu finisaje din marmură și un dressing generos, în timp ce celelalt dormitor poate fi amenajat ca dormitor pentru copii, sau cameră de oaspeți. Aditional exista si un birou.
• Doua băi complet echipate – Fiecare spațiu sanitar este dotat cu obiecte sanitare, cabina de duș walk-in, cadă freestanding și sisteme moderne de iluminare indirectă.
• O terasă însorite – de 65mp un spațiu exterior, unde puteți savura cafeaua de dimineață sau petrece seri relaxante cu prietenii.
✔ Încălzire prin intermediul centralei de imobil – pentru un confort termic superior
✔ Ferestre cu geam tripan și tâmplărie premium – izolare termică și fonică excelentă
✔ Ușă metalică blindată și sistem de alarmă – protecție maximă împotriva intrușilor
Un stil de viață exclusivist într-o locație de top
Cartierul Primăverii este recunoscut ca cea mai exclusivistă zonă rezidențială din București, preferată de oameni de afaceri, diplomați și personalități publice. Apartamentul beneficiază de acces rapid către:
• Parcul Herăstrău – un adevărat colț de natură în mijlocul orașului
• Bulevardul Aviatorilor & Piața Charles de Gaulle – zone vibrante, cu restaurante de top și centre de afaceri
• Licee internaționale și grădinițe private – ideal pentru familiile cu copii
• Centre comerciale premium – Promenada Mall, Galeriile Victoria și buticuri de lux
Investiție sigură într-o proprietate de excepție
Datorită poziționării sale în cea mai dorită zonă a Capitalei, acest apartament nu este doar o locuință de vis, ci și o investiție valoroasă. Piața imobiliară din Primăverii este într-o continuă apreciere, iar proprietăți similare sunt rare și foarte căutate.
Detalii suplimentare:
✔ Loc de parcare subteran inclus
✔ Acces securizat
✔ Lift premium cu acces direct din garaj
✔ Servicii de administrare și întreținere impecabile
Dacă sunteți în căutarea unei locuințe de lux, cu design sofisticat, tehnologie modernă și o poziție de excepție, acest apartament este alegerea ideală.
Contactați-ne pentru mai multe detalii și pentru a programa o vizionare; programările se fac cu o zi înainte, proprietatea fiind închiriată in prezent.