







Va propunem un apartament de 3 camere transformat din 4 camere in zona Ștefan cel Mare, in apropiere de mijloacele de transport in comun, parc si alte facilitati.
Apartamentul este situat la etajul ... al unui imobil finalizat in anul 1982, izolat termic pe exterior si securizat cu interfon.
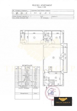
Dispune de o suprafata totala de 93mp, este semidecomandat si compartimentat astfel: living, bucatarie, doua dormitoare, doua bai, hol, spatii de depozitare si 2 balcoane.
Apartamentul se preteaza ca si locuinta de familie sau investitie si se vinde mobilat si utilat.
*Proprietatea a fost verificata si este valabila, confirmarea fiind facuta, atat timp cat este la promovare.
*Pentru mai multe detalii si pentru programarea unei vizionari, sunati in orice zi intre orele 09:00 si 21:00 inclusiv in week-end incepand cu ora 10:00 pana la 22:00.