













Va propunem un apartament de trei camere in Cismigiu, in apropiere de mijloacele de transport in comun, parc si alte facilitati.
Apartamentul este situat la etajul 1 al unui imobil finalizat in anul 1964.
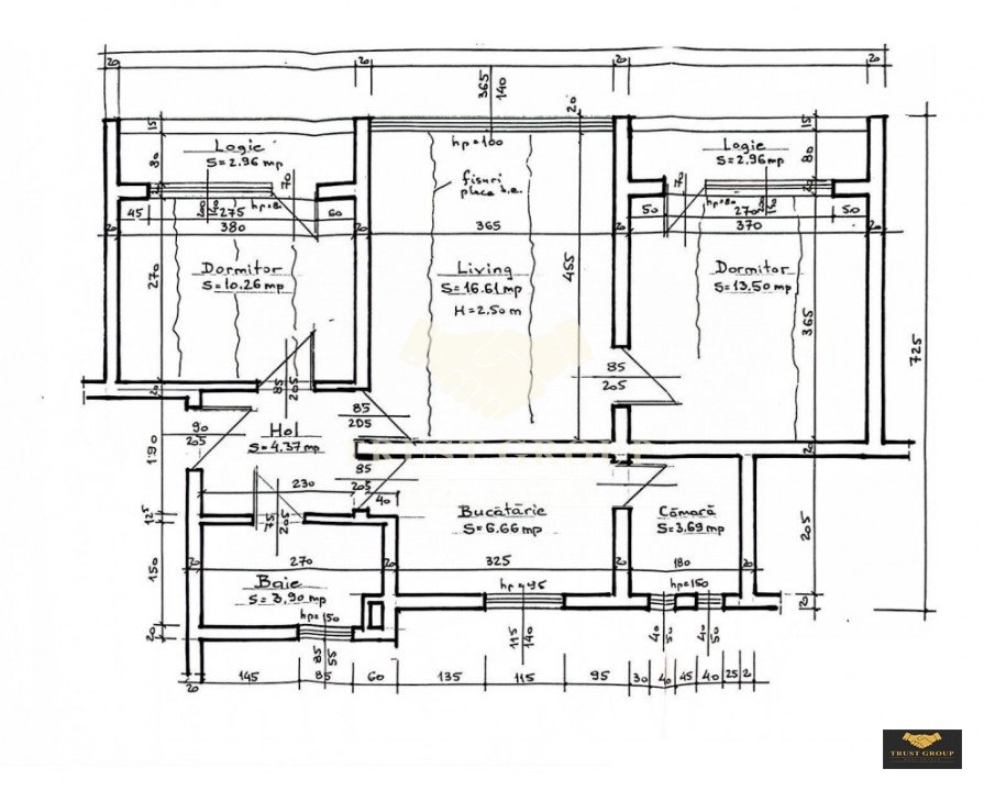
Dispune de o suprafata totala de 67mp, este semidecomandat si compartimentat astfel: living, bucatarie, doua dormitoare, o baie, hol, spatiii de depozitare si un balcon.
Apartamentul dispune de centrala proprie montata in februarie 2024, geamuri termopan, instalatie electrica si sanitara schimbata.
Apartamentul se preteaza ca si locuinta de familie sau investitie si se vinde mobilat si utilat.
*Proprietatea a fost verificata si este valabila, confirmarea fiind facuta, atat timp cat este la promovare.
*Pentru mai multe detalii si pentru programarea unei vizionari, sunati in orice zi intre orele 09:00 si 21:00 inclusiv in week-end incepand cu ora 10:00 pana la 22:00.