Trust Group Agentie imobiliara utilizează fişiere de tip cookie pentru a personaliza și îmbunătăți experiența ta pe Website-ul nostru. Înainte de a continua navigarea pe Website-ul nostru te rugăm să aloci timpul necesar pentru a citi și înțelege conținutul Politicii de Cookie. Prin continuarea navigării pe Website-ul nostru confirmi acceptarea utilizării fişierelor de tip cookie conform Politicii de Cookie.

Apartament 3 Camere Titulescu | necesita renovare

Bucuresti, Titulescu

172.000€
ID: P51561 293
  • Nr. camere:3
  • S. utila:71.00 mp
  • S. construita:76.00 mp
  • Comp.:Decomandat
  • Confort:1
  • Etaj:Etaj 1
  • Nr. bucatarii:1
  • Nr. bai:1
  • Nr. balcoane:1
  • An constructie:1978
  • Tip imobil:Bloc
  • Regim inaltime:P+10

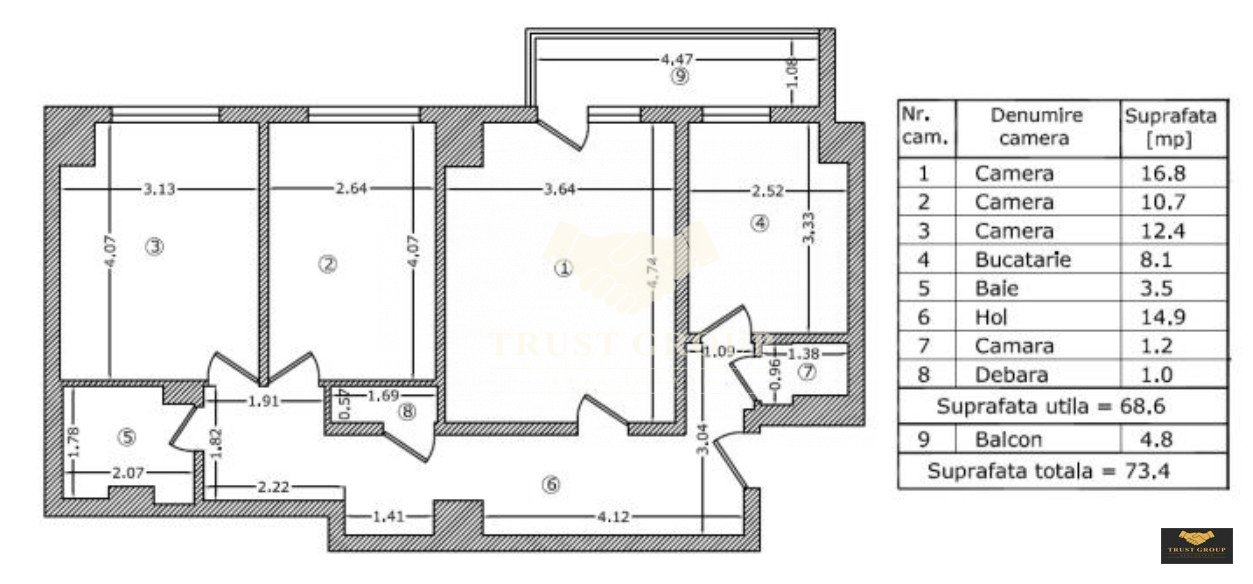
Va propunem un apartament de trei camere in zona Titulescu-Banu Manta , in apropiere de mijloacele de transport in comun, parc si alte facilitati.
Apartamentul este situat la etajul 1 al unui imobil finalizat in anul 1978, izolat termic pe exterior si securizat cu interfon.
Dispune de o suprafata totala de 71,77mp, este decomandat si compartimentat astfel: living, bucatarie, doua dormitoare, baie, hol, spatii de depozitare si un balcon.
Apartamentul necesita renovare.

*Proprietatea a fost verificata si este valabila, confirmarea fiind facuta, atat timp cat este la promovare.
*Pentru mai multe detalii si pentru programarea unei vizionari, sunati in orice zi intre orele 09:00 si 21:00 inclusiv in week-end incepand cu ora 10:00 pana la 22:00.

Utilitati
  • Utilitati generale: Curent, Apa, Canalizare, Gaz
  • Sistem incalzire: Termoficare, Calorifere
Finisaje
  • Izolatii: Bloc izolat termic
  • Stare: Necesita renovare
  • Ferestre: PVC, Termopan
Dotari
  • Contorizare: Apometre
  • Imobil: Interfon, Lift
Zona
  • Amenajare strazi: Asfaltate, Iluminat stradal, Mijloace de transport in comun