


























Va propunem un apartament de patru camere in zona Cismigiu, in apropiere de mijloacele de transport in comun, parc si alte facilitati.
Apartamentul este situat la Parterul unui imobil finalizat in anul 1918, izolat termic pe exterior si securizat cu interfon.
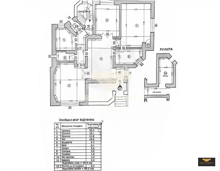
Dispune de o suprafata utila totala de 90,6mp, este decomandat si compartimentat astfel: living, bucatarie, trei dormitoare, doua bai, hol, spatii de depozitare, la care se adauga cele doua camere de la demisol si jumatatea de mansarda(45mp in proprietate, 10mp la comun cu vecinul)
Apartamentul se preteaza ca si locuinta de familie sau investitie si se vinde nemobilat si neutilat, necesidand o renovare completa.
Proprietatea are doua intrari- una principala, prin fata imobilului, si o intrare secundara, pe scara de serviciu din spatele imobilului, pe unde de altfel se ajunge si la mansarda si respectiv spre subsol.
*Fatada si acoperisul imobilului au fost refacute- ar mai avea nevoie doar de o culoare noua fatada.
*Mai este un sigur alt proprietar in imobil
*Veti dispune de o curte la comun cu celalalt proprietar, ce este dispusa jur împrejurul casei (67,65mp cota parte teren)
*Fiecare apartament are intrare separata de celalalt
*Imobilul dispune de un garaj
*Exista Legea 112 in istoric
-Clasa energetica : B
*Proprietatea a fost verificata si este valabila, confirmarea fiind facuta, atat timp cat este la promovare.
*Pentru mai multe detalii si pentru programarea unei vizionari, sunati in orice zi intre orele 09:00 si 21:00 inclusiv in week-end incepand cu ora 10:00 pana la 22:00.