



















Va propunem un apartament de patru camere in zona Cismigiu, in apropiere de mijloacele de transport in comun, parc si alte facilitati.
Apartamentul este situat la etajul 1 al unui imobil finalizat in anul 1937.
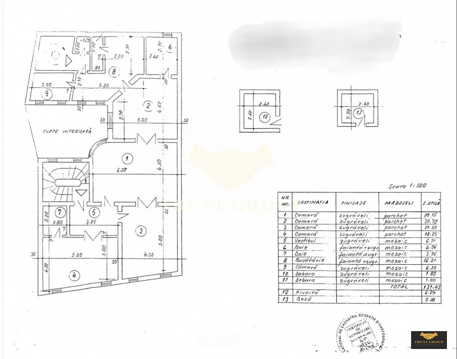
Dispune de o suprafata totala de 131mp, este circular si compartimentat astfel: living, bucatarie, trei dormitoare, doua bai, hol si spatii de depozitare.
Apartamentul se preteaza ca si locuinta de familie sau investitie si se vinde mobilat si utilat, impreuna cu o boxa si o pivniță.
*Proprietatea a fost verificata si este valabila, confirmarea fiind facuta, atat timp cat este la promovare.
*Pentru mai multe detalii si pentru programarea unei vizionari, sunati in orice zi intre orele 09:00 si 21:00 inclusiv in week-end incepand cu ora 10:00 pana la 22:00.