


















Penthouse Exclusivist în Inima Bucureștiului – Str. Luigi Cazzavillan, Zona Cișmigiu
Vă propunem spre vânzare o proprietate rară, situată pe probabil cea mai frumoasă și liniștită stradă din zona Cișmigiu: Luigi Cazzavillan. Acest apartament cu 4 camere reprezintă echilibrul perfect între eleganța arhitecturală a zonei istorice și confortul absolut al unui imobil nou.
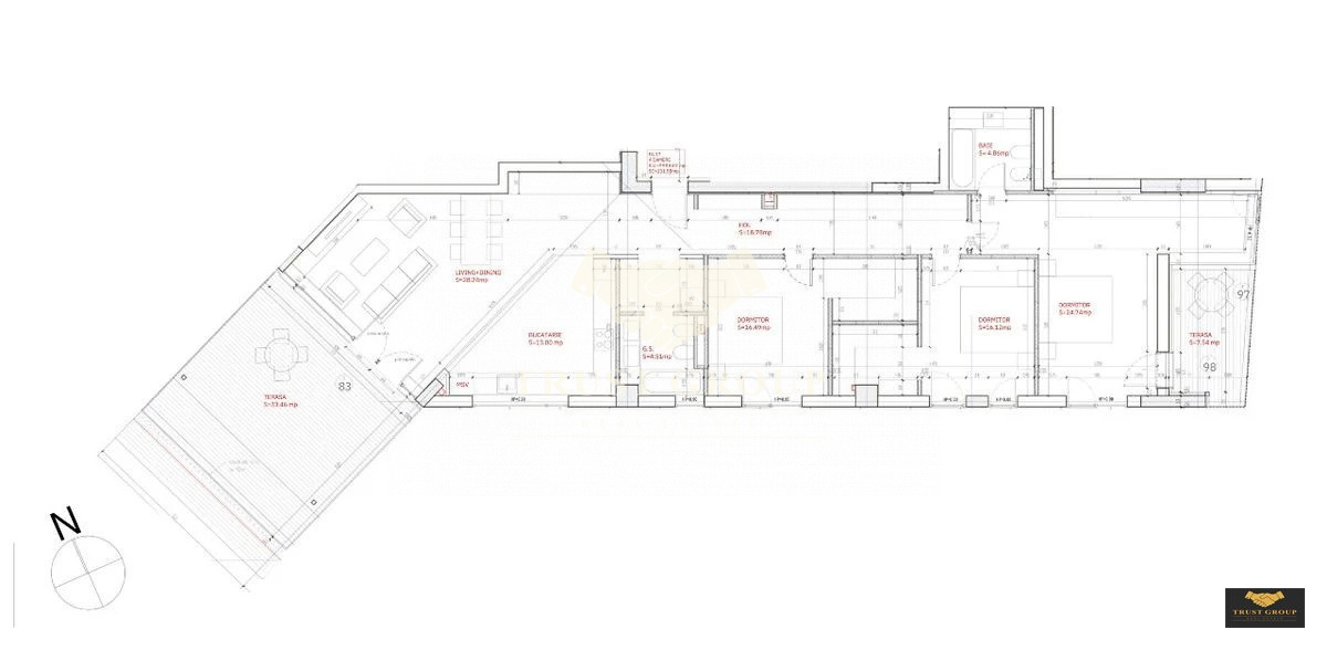
Caracteristici Principale și Compartimentare
Situat la etajul 4, apartamentul impresionează prin spațiile generoase și luminozitatea naturală, având o suprafață utilă totală de 212 mp.
• Suprafață utilă interior: 170 mp compartimentați inteligent în stil semidecomandat.
• Terase superbe: 42 mp de spațiu exterior privat, ideal pentru momente de relaxare deasupra orașului, cu vederi panoramice deosebite.
• Configurație: 4 camere spațioase, 1 bucătărie modernă și 3 băi elegante.
• Confort: Gradul 1, finisaje de top.
Dotări și Facilități Premium
Apartamentul este conceput pentru a oferi un stil de viață modern și lipsit de griji:
• Sistem de încălzire: Centrală proprie a imobilului și încălzire în pardoseală pentru un confort termic optim și eficiență energetică.
• Climatizare: Sistem de aer condiționat integrat în fiecare cameră.
• Depozitare și Parcare: Un avantaj major pentru zona centrală – proprietatea include 2 locuri de parcare în garajul subteran și o boxă de depozitare.
• Stare: Se vinde parțial mobilat și utilat, exact cum se prezintă în imagini, fiind gata pentru mutare imediată.
Localizare de Excepție
Locuind pe strada Cazzavillan, vă bucurați de farmecul boem al Bucureștiului de altădată, fiind la doar câțiva pași de Parcul Cișmigiu, instituții de cultură, restaurante de fine-dining și școli de elită. Este o locație ce oferă nu doar un cămin, ci un statut social și o investiție sigură pe termen lung.