





































Gandit sa ofere un design New Yorkez industrial modern, acest spațios apartament dispune de 4 camere si se află în zona parcului Herastrau, pe Soseaua Nordului.
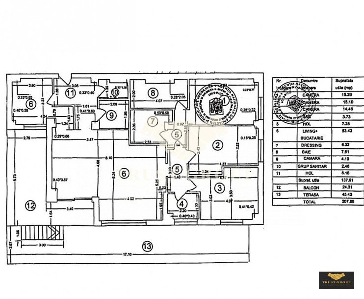
Cu o suprafață totala de 208mp, si locuibila de 137,91 metri pătrați, acesta oferă suficient spațiu pentru confortul dumneavoastră. Apartamentul este semidecomandat și este compartimentat astfel: living, bucătărie, trei dormitoare, două băi, hol și spații de depozitare. Beneficiați și de un generos balcon de 24,31 metri pătrați și o terasă spațioasă de 45,43 metri pătrați, ideale pentru relaxare sau petrecerea timpului în aer liber.
Proprietatea se afla la parterul clădirii, ceea ce oferă acces facil și comod.
Apartamentul este ideal atât ca locuință pentru o familie cât și ca investiție. A fost recent renovat, oferind un aspect proaspăt și modern. Se vinde momobilat și utilat partial, ceea ce vă permite să vă personalizați spațiul după preferințe.
Un alt avantaj este faptul ca veti beneficia și de un loc de parcare, ce are un cost aditional de 30.000€.
Imobilului in care se afla proprietatea i-a fost refacuta fatada recent, urmeaza sa ii fie renovata si casa scarii, dispune de paza 24/7, supraveghere video si cel mai important - dispune de piscina interioara, sauna, sala de fitness complet echipata si ba chiar, o zona in care puteti sa va relaxati in timp ce vi se face un masaj, care sa va faca sa uitati de eforturile depuse in sala de sport si apoi in bazin.
Pentru mai multe informații sau pentru a programa o vizionare, vă rugăm să ne contactați. Acest apartament oferă o oportunitate excelentă pentru cei care caută confort, spațiu și un design contemporan într-o locație privilegiata a Bucurestiului.