












Va propunem un apartament de 4 camere in zona Herastrau, in apropiere de mijloacele de transport in comun, parc si alte facilitati.
Apartamentul este situat la etajul 4 al unui imobil finalizat in anul 2011, izolat termic pe exterior si securizat cu interfon.
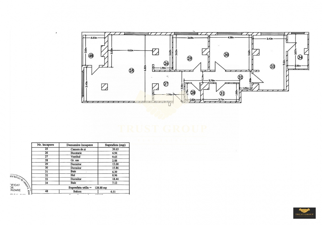
Dispune de o suprafata totala de 136mp, este decomandat si compartimentat astfel: living, bucatarie, trei dormitoare, doua bai, hol, spatii de depozitare si un balcon.
Apartamentul se preteaza ca si locuinta de familie sau investitie si se vinde mobilat si utilat.
Separat se poate achiziționa un loc de parcare si o boxa.
*Proprietatea a fost verificata si este valabila, confirmarea fiind facuta, atat timp cat este la promovare.
*Pentru mai multe detalii si pentru programarea unei vizionari, sunati in orice zi intre orele 09:00 si 21:00 inclusiv in week-end incepand cu ora 10:00 pana la 22:00.