Trust Group Agentie imobiliara utilizează fişiere de tip cookie pentru a personaliza și îmbunătăți experiența ta pe Website-ul nostru. Înainte de a continua navigarea pe Website-ul nostru te rugăm să aloci timpul necesar pentru a citi și înțelege conținutul Politicii de Cookie. Prin continuarea navigării pe Website-ul nostru confirmi acceptarea utilizării fişierelor de tip cookie conform Politicii de Cookie.

Apartament 4 camere Aviatorilor | Imobil 2024 | Loc de parcare

Bucuresti, Kiseleff

685.000€
ID: P55717 3 Exclusivitate
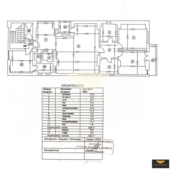
  • Nr. camere:4
  • S. utila:125.00 mp
  • S. balcoane:9.00 mp
  • S. utila totala:134.00 mp
  • S. construita:150.00 mp
  • Comp.:Semidecomandat
  • Confort:Lux
  • Etaj:Etaj 1
  • Nr. bucatarii:1
  • Nr. bai:4
  • Nr. balcoane:2
  • Nr. parcari:1
  • An constructie:2024
  • Tip imobil:Bloc
  • Regim inaltime:P+3
  • Orientare:Sud-Vest

Situat în inima cartierului Aviatorilor, acest apartament luxos se remarcă prin rafinament și eleganță.
Cu o compartimentare decomandată, oferă un spațiu generos și luminos, perfect pentru confortul dumneavoastră.
Cele patru camere, inclusiv livingul open space cu bucătăria modernă, și cele trei dormitoare asigură spațiu suficient pentru întreaga familie sau pentru a vă primi oaspeții cu stil.
Fiecare dormitor este însoțit de baia sa proprie, oferind intimitate și comoditate în același timp.
Cu o suprafață utilă de 127 de metri pătrați și un balcon încântător de 8 metri pătrați, aveți posibilitatea de a vă bucura de priveliști spectaculoase și de a savura momente de relaxare în aer liber.
Situat la etajul 1 dintr-un total de 3 etaje, acest apartament oferă o atmosferă liniștită și exclusivistă, fiind singurul apartament de pe etajul său, într-un bloc cu doar trei unități locative.
În plus, beneficiind de un an de construcție recent - 2024, apartamentul se bucură de facilități moderne și finisaje de cea mai înaltă calitate.

Blocul este dotat cu terase private pentru fiecare apartament, oferindu-vă un spațiu suplimentar pentru relaxare și socializare.

Ca locuitor al acestui apartament, veți avea privilegiul de a vă număra printre vecinii unei comunități selecte, ce cuprinde personalități publice ale Bucureștiului și oameni de afaceri români și străini.

Disponibil imediat, inclusiv prin credit, acest apartament oferă o oportunitate rară de a trăi într-unul dintre cele mai prestigioase cartiere ale Bucureștiului.

În plus, beneficiind și de un loc de parcare suprateran, acest apartament îndeplinește toate criteriile pentru a deveni locuința de vis a unei familii sau un punct de reper în portofoliul dumneavoastră imobiliar.
Locul de parcare se achizitioneaza separat.

Pentru a va convinge singuri de potentialul acestei proprietati, nu ezitati sa ne solicitati o vizionare.

Utilitati
  • Utilitati generale: Curent, Apa, Canalizare, Gaz, CATV, Telefon, Acces internet, Fibra optica, Utilitati in zona
  • Sistem incalzire: Centrala proprie
  • Climatizare: Aer conditionat
Finisaje
  • Izolatii: Interior, Bloc izolat termic
  • Pereti: Vopsea lavabila, Var, Faianta
  • Podele: Parchet, Gresie, Marmura
  • Stare: Finisat
  • Ferestre: Termopan
  • Usa intrare: Metal
  • Usa interior: Lemn
Dotari
  • Spatii utile: Terasa, Wc serviciu, Debara, Dressing
  • Bucatarie: Mobilata, Utilata
  • Mobilat: Complet
  • Imobil: Interfon, Lift
Zona
  • Amenajare strazi: Asfaltate, Iluminat stradal, Mijloace de transport in comun

Gabriel Maris

Founder- REALTOR®

Contacteaza-ma

Gabriel Maris

0765704377