


























Acest apartament este situat la etajul 6 al unui imobil nou receptionat si livrat la inceputul anului 2011, gandit ca un imobil exclusivist, aflat in zona centrala a Bucurestiului, cu acces facil la principalele mijloace de transport in comun, dar in acelasi timp pozitionat intr-o zona care ofera vederi generoase spre Parcul Circului si spre zona de Nord (Floreasca, Herastrau, Casa Presei Libere) si care beneficiaza de toate facilitatile si punctele de interes de care aveti nevoie.
Blocul are 3 niveluri de subsol astfel incat sa asigure suficiente locuri de parcare pentru toate apartamentele.
Structura este protejata de o incinta de piloti forati secanti, cu excavatia pana la nivelul de -11m, sub nivelul panzei freatice.
Informatii generale: lift Schindler, centrala Buderus cu arzator Weishaupt si 40 mp panouri solare Buderus-Logasol, paza umana si supraveghere video 24/7, sistem automat de detectare si stingere incendii, sistem automat de detectie si evacuare a noxelor din subsol, sistem degivrare rampa acces parcare subterana.
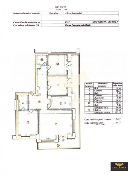
Apartamentul este nou si are o suprafata utila de 94.55 mp completata de o terasa de 25.63 mp utili.
Compartimentare:
Living: 26.14 mp
Bucatarie: 7.99 mp
Dormitor matrimonial: 14.53 mp
Dormitor: 11.47 mp
Dormitor: 11.32 mp
Baie matrimoniala: 3.88 mp
Baie: 2.86 mp
Balcon: 25.63 mp
Toate camerele beneficiaza de aer conditionat.
Apartamentele sunt prevazute cu contorizare individuala pentru fiecare tip de consum.
Se achizitioneaza împreună cu doua locuri de parcare si o boxa.