














Va propunem un apartament de patru camere in zona Gradina Icoanei , in apropiere de mijloacele de transport in comun, parc si alte facilitati.
Apartamentul este situat la etajul 5 al unui imobil finalizat in anul 1997 izolat termic pe exterior si securizat cu interfon.
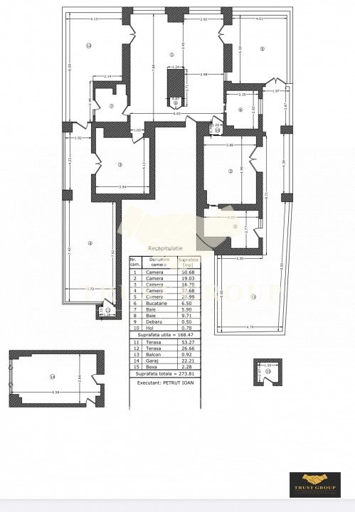
Dispune de o suprafata totala de 270mp, este decomandat si compartimentat astfel: living, bucatarie, patru dormitoare, doua bai, hol, spatii de depozitare si doua terase de 80mp.
Apartamentul se preteaza ca si locuinta de familie sau investitie si se vinde nemobilat si neutilat / liber, impreuna cu un loc de parcare si o boxa de depozitare.
*Proprietatea a fost verificata si este valabila, confirmarea fiind facuta, atat timp cat este la promovare.
*Pentru mai multe detalii si pentru programarea unei vizionari, sunati in orice zi intre orele 09:00 si 21:00 inclusiv in week-end incepand cu ora 10:00 pana la 22:00.