














Propunem spre vânzare un penthouse spectaculos format din cinci camere, situat la etajul 5 al unui imobil finalizat în 1997, cu regim de înălțime S+P+5 și fațadă termoizolată, dotat cu interfon, garanția confortului urban.
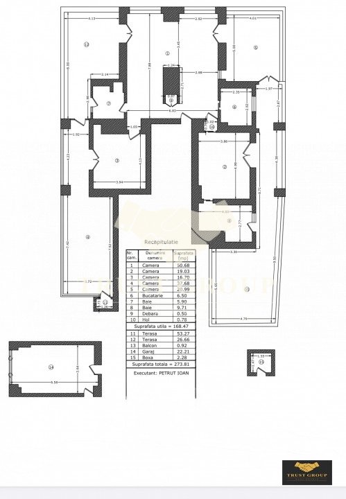
Spațiul se desfășoară pe aproximativ 170 m² utili + 80 m² terase, însumând în total ~270 m² — o suprafață generoasă, ideală pentru o locuință de familie sau un stil de viață sofisticat.
Compartimentarea este decomandată și include: living spațios, bucătărie, patru dormitoare luminoase, două băi, hol, spații de depozitare, plus două terase/zone exterioare — un adevărat penthouse clasic.
La acestea se adaugă un loc de parcare și o boxă / debara de depozitare incluse în pret, pentru confortul deplin al locatarilor.
Apartamentul se vinde nemobilat și neutilat / liber — o pânză albă pentru viitorii proprietari să își imprime propriul stil.
⸻
📍 Localizare & Accesibilitate — de ce zona Grădina Icoanei e un atu
• Parcul Grădina Icoanei este o oază de verdeață și istorie, un spațiu cochet, ideal pentru plimbări, relaxare sau pentru cei ce apreciază liniștea urbană. 
• De la apartament si pana la cea mai apropiată stație de metrou este Piața Romană (linie M2) — aproximativ 9 minute de mers pe jos, iar până la parc / Grădina Icoanei 2 minute.
• Stațiile de autobuz/troleibuz/tramvai sunt și ele la câțiva pași — opțiuni precum stațiile “Batistei”, “Bd. Nicolae Bălcescu”, “Piata Lahovari” sunt între 5–10 minute de mers pe jos. 
Concluzie: accesul la transportul public este excelent — ideal pentru deplasări rapide în oraș, dar și pentru viața de zi cu zi.
⸻
🏥 Spitale / Sănătate & În apropiere
Dacă ar fi să menționăm cel puțin un reper medical important: la un drum relativ scurt- spitalul de urgenta Floreasca este la o distanta scurta- Astfel, în caz de nevoie medicală sau controale uzuale, nu e nevoie de deplasări lungi.
⸻
🛍️ Shopping / Mall & Timp liber
Cele mai apropiate malluri sunt București Mall (Mall Vitan) (Mall Vitan) — un centru comercial cunoscut, cu magazine, cinema, restaurante, facilități de parcare etc., iar in partea opusa mall Promenada in Calea Floreasca.
Pentru viața de zi cu zi, zona Grădina Icoanei + centrul-nord oferă acces rapid la magazine, buticuri, restaurante și facilități urbane, ceea ce face ca stilul de viață să fie cu adevărat urban și confortabil.
⸻
🏫 Școală / Educație & Comunitate
Referitor la educație- chiar pe strada Icoanei, care este la 2 minute distanță, se regăsește Scoala Centrala, care este una dintre cele mai bune cotate din oraș, iar daca copiii dvs sunt deja gata de studenție, ASE-ul este la 8 minute distanța.
⸻
Daca te-a convins potențialul acestei proprietăți, nu ezita sa apelezi numărul de telefon afișat pentru programarea unei vizionări!