


























Vilă de vânzare în Avalon Residence – Pipera
Descoperă confortul și liniștea unui complex rezidențial exclusivist, situat pe Bulevardul Pipera, în apropierea rondului OMV. Avalon Residence este un ansamblu modern, format din townhouse-uri și blocuri cu regim mic de înălțime, înconjurat de spații verzi generoase și facilități premium pentru întreaga familie:
-grădină si promenada pe malul lacului
-loc de joacă pentru copii
-teren de baschet
-piscină exterioară
-sală de yoga
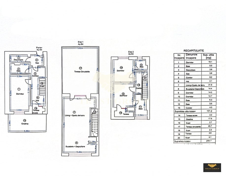
Compartimentare vilă:
-Parter: un dormitor/birou, baie cu duș, cameră tehnică cu mașină de spălat și uscător, acces direct către parcarea acoperită prin iesirea secundara din casă.
-Etaj 1: living spațios în regim open space cu bucătărie modernă (dotată inclusiv cu bar ascuns), plus un WC de serviciu pentru oaspeți.
-Etaj 2: două dormitoare, fiecare cu baie proprie; unul dintre ele dispune de terasă/balcon deschis de 4 mp.
În fața casei, chiar la intrarea principală, se află o grădină intimă de 18 mp, ideală pentru amenajări florale sau o zonă verde de relaxare. În spate, în continuarea livingului de la etajul 1, se deschide o terasă generoasă de 48 mp, perfectă pentru seri în aer liber, cină cu prietenii sau spațiu de joacă pentru cei mici.
Parcarea este acoperită și poziționată chiar lângă ieșirea din casă, pentru un plus de comoditate.
Această vilă îmbină perfect funcționalitatea, designul modern și facilitățile de lifestyle din cadrul complexului, fiind alegerea ideală pentru o familie care caută confort și siguranță.
La pretul afisat se adauga TVA.
Fiecare loc de parcare are un cost aditional de 25.000€ +TVA