




















Va propunem o vila cu 7 camere in zona Andronache.
Construita in 2007, casa se desfasoara pe P+1+M si are o suprafata de 330mp si o curte libera de 230mp.
La parter casa este impartita in doua apartamente avand doua intrari separate si regasim 2 camere, o bucatarie, doua bai si un living de paroximativ.
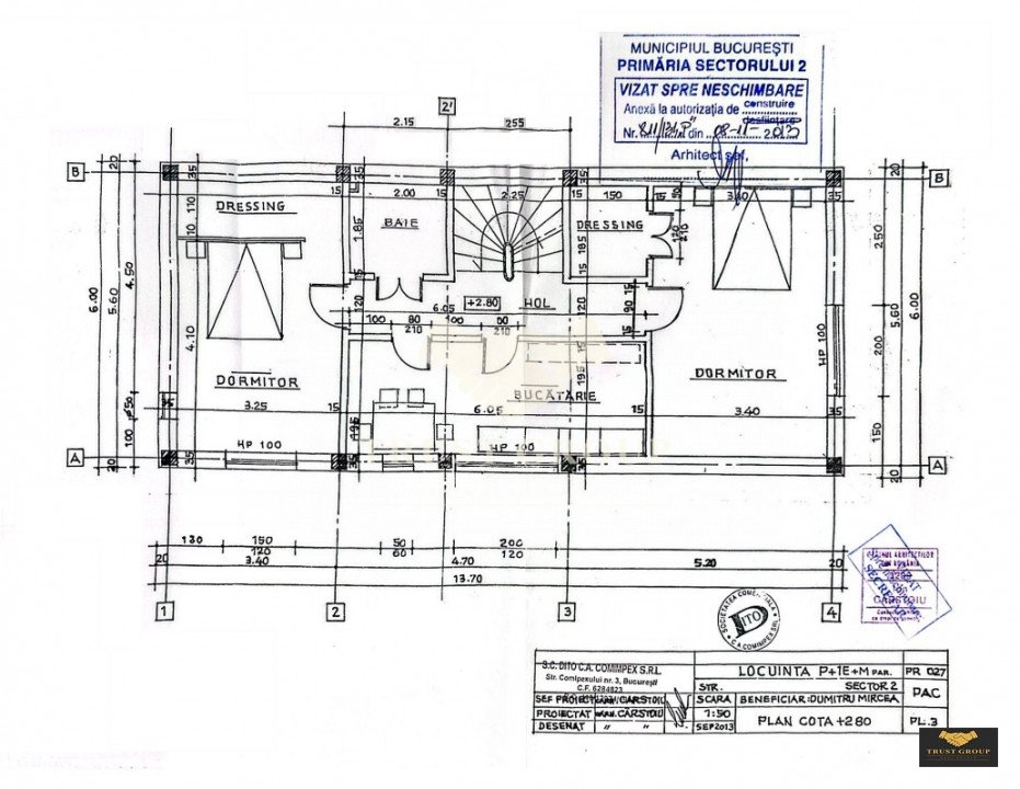
La etajul 1 avem doua dormitoare, o baie, o bucatarie si un balcon.
In mansarda regasim o baie,un spatiu de depozitare, o zona de relaxare si o alta camera ce poate amenajata in birou sau dormitor.
Imobilul este amplasat pe un teren de 485mp si detine un garaj pentru doua masini.