



Va prezentam un spatiu de birouri situat in zona Floreasca.
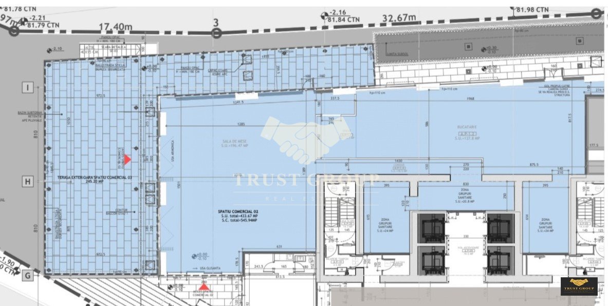
Spatiul pe care vi-l prezentam este unul generos de 434mp in total ce se desfasoara pe Parterul unei cladiri de birouri de 20 etaje.
Dispune de receptie, paza 24/24 si parcare.
Birourile nu sunt amenajate cu mocheta, si finisaje sau compartimentate- de aceasta investitie se ocupa chiriasul in totalitate. Existand un open space puteti usor, cu sticla, sau pereti de rigips, sa transformati spatiul in totalitate pentru avea in final biroul la care visati.
Deasemenea, spatiul dumneavoastra dispune de o terasa generoasa de 245mp, unde le puteti amenaja angajatilor un spatiu de recreere in aer liber.
Termenii de inchiriere sunt: 1 luna avans+ 2 luni garantie.
*Proprietatea a fost verificata si este valabila, confirmarea fiind facuta, atat timp cat este la promovare.
*Pentru mai multe detalii si pentru programarea unei vizionari, sunati in orice zi intre orele 09:00 si 21:00 inclusiv in week-end incepand cu ora 10:00 pana la 22:00.