









Va prezentam un spatiu de birouri situat in zona Unirii, la doar cativa pasi de metroul Unirii.
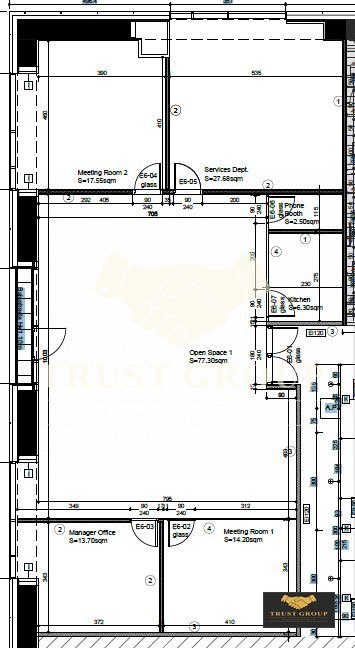
Spatiul pe care vi-l prezentam este unul generos de 538mp in total ce se desfasoara peEtajul 6 al unei cladiri de birouri de 6 etaje.
Dispune de receptie, paza 24/24 si multe alte facilitati.
Birourile sunt amenajate cu mocheta, spatiul fiind compartimentat cu sticla, si pereti de rigips in multiple sali conferinta, camera server, spatiu de relaxare, bucatarie, bai si birouri open space.
In pretul afisat nu este inclusa si mentenanta spatiului.
Termenii de inchiriere sunt: 1 luna avans+ 2 luni garantie.
Pentru vizionari nu ezitati sa ne contactati!
*Proprietatea a fost verificata si este valabila, confirmarea fiind facuta, atat timp cat este la promovare.
*Pentru mai multe detalii si pentru programarea unei vizionari, sunati in orice zi intre orele 09:00 si 21:00 inclusiv in week-end incepand cu ora 10:00 pana la 22:00.