







Vă prezentăm o proprietate rară pe piață, situată într-una dintre cele mai căutate zone ale Capitalei – intersecția dintre rafinamentul zonei Dorobanți și accesibilitatea magistralei de metrou Ștefan cel Mare.
Un apartament de 2 camere, decomandat, cu o compartimentare eficientă și o poziționare strategică, perfect pentru o locuință urbană sau pentru un portofoliu investițional solid.
Localizare strategică – conectivitate urbană excepțională
- La doar 5 minute de mers pe jos până la metrou Ștefan cel Mare
- 8 minute până la Piața Victoriei, centrul business și diplomatic al orașului
- 15 minute până la Promenada Mall și zona de birouri din Pipera/Aviației
- 5 minute de zona Dorobanți – cafenele, restaurante premium, magazine de designer
- În apropierea parcurilor, clinicilor private, instituțiilor educaționale și mijloacelor de transport în comun
Detalii generale ale proprietății:
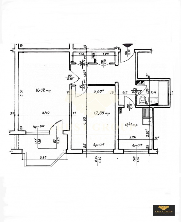
- Suprafață utilă: 55 mp
- Suprafață construită: 60 mp
- Compartimentare: decomandat, ideală pentru un flux funcțional
- Etaj: 8 din 8 – lumină naturală din plin și vedere panoramică asupra orașului
- An construcție: 1978
- Imobil izolat termic pe exterior, acces securizat prin interfon, lift funcțional
Compartimentare interioară:
- Living spațios, luminos, cu acces la balcon – perfect pentru relaxare sau zonă de lucru
- Dormitor cu dimensiuni generoase și intimitate asigurată de separarea față de zona de zi
- Bucătărie închisă, complet mobilată și echipată – spațiu eficient pentru gătit
- Baie completă, aerisită, cu finisaje bine întreținute
- Hol larg cu spații de depozitare integrate
- Balcon închis, ideal ca spațiu de relaxare sau depozitare
Finisaje și dotări:
- Parchet laminat, gresie și faianță
- Ferestre din termopan PVC
- Uși interioare din lemn
- Sistem de încălzire prin termoficare cu calorifere
- Se vinde complet mobilat și utilat, inclusiv electrocasnice funcționale
Beneficii cheie:
- Etaj superior, priveliște neobstrucționată asupra orașului
- Orientare ideală pentru lumină naturală pe tot parcursul zilei
- Imobil bine întreținut, cu vecinătate liniștită
- Locuință pregătită pentru mutare imediată
- Investiție excelentă – ușor de închiriat datorită poziționării
Recomandări de utilizare:
- Ideal pentru cupluri tinere, profesioniști activi, studenți internaționali sau expați
- Se pretează perfect pentru închiriere în regim clasic sau hotelier
- Potrivit pentru cei care își doresc accesibilitate fără compromisuri privind calitatea vieții urbane
Pentru mai multe detalii sau pentru a programa o vizionare, nu ezitați să ne contactați.