











🌟 Apartament de 3 camere în zona Cismigiu – ideal pentru investiție
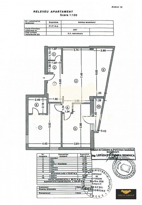
Vă propunem un apartament decomandat, cu 3 camere, situat la parterul unui imobil premium finalizat în 2007, izolat termic pe exterior și securizat cu interfon. Proprietatea dispune de o suprafață utilă de 74 mp, balcon de 17 mp, cu suprafață totală de 91 mp și este compartimentată astfel: living, bucătărie, două dormitoare, două băi, hol, spații de depozitare și balcon.
Apartamentul se vinde nemobilat și neutilat, oferind o oportunitate excelentă pentru investiție, fiind în prezent închiriat. Clasa energetică: A.
⸻
🌆 Localizare & proximități
• Parcul Cismigiu – la doar 2 minute de mers pe jos, ideal pentru plimbări și relaxare,
• Universitatea București / ASE – aproximativ 10 minute pe jos,
• Metrou Universitate – la 8 minute de mers pe jos, pentru acces rapid în centru și către restul orașului,
• Calea Victoriei – la 5 minute de mers pe jos, cu restaurante, cafenele și magazine de lux,
• Centrul Vechi – la 10 minute pe jos, pentru viața urbană și opțiuni de petrecere a timpului liber,
• Restaurante și cafenele în imediata apropiere, inclusiv bistrouri și locații cu specific internațional.
⸻
✨ Dotări & avantaje
• Bloc finalizat în 2007, regim S+P+4 etaje,
• Apartament decomandat, spațios și luminos,
• 2 băi moderne și bucătărie nemobilată / neutilată,
• Sistem de încălzire cu centrală proprie și calorifere, aer condiționat,
• Ferestre PVC termopan, uși metalice și uși interioare din lemn,
• Spații utile incluse: WC serviciu și dressing,
• Interfon și lift în imobil,
• Acces rapid la puncte cheie din centrul Capitalei, ideal pentru profesioniști sau studenți.
⸻
📞 Sunați acum pentru mai multe detalii și pentru programarea unei vizionări!